Проект одноэтажного дома Проект 9-150
Площадь
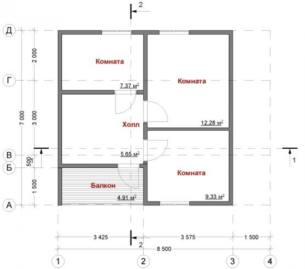
102 м 2
Размер дома:
7x7
Этажей:
1
Спален:
4
Санузел:
0
Гараж:
Нет
Баня:
Нет
Терраса:
Нет
Панорамные окна:
Нет
Мастер-спальня:
Нет
О проекте
Проект, где свет и тень создают гармонию. 102 м² — универсальный формат для современного образа жизни. Наличие 4 спальни удовлетворит запросы семьи с детьми. Конструкция из Каркас обеспечивает прочность и долговечность. Архитектура выполнена в стиле дома в классическом стиле.Характеристики
- Общая площадь: 102 м2
- Количество этажей: 1
- Стиль, разновидность: Дома в ином стиле
- Форма: Прямоугольные дома
- Тип кровли: Дома с иной крышей
- Отделка: Без отделки
- Размер: 7x7
Отправьте свои контакты и мы расчитаем вам смету
Скорее всего вам подойдут следующие проекты домов:
Дом подходит для:
Дом подходит для:
Дом подходит для:








