Проект одноэтажного дома Проект ДБ-1
Площадь
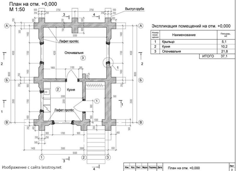
37 м 2
Размер дома:
Этажей:
1
Спален:
1
Санузел:
0
Гараж:
Нет
Баня:
Нет
Терраса:
Нет
Панорамные окна:
Нет
Мастер-спальня:
Нет
О проекте
Дом сочетает модный внешний вид с удобной организацией жилого пространства.108 м² под одной крышей — всё необходимое здесь. Количество спален — 3, делая планировку гибкой. Двухэтажная грамотная планировка создаёт идеальные условия для жизни всей семьи. Дом спроектирован в духе дома в стиле модерн.Характеристики
- Общая площадь: 37 м2
- Количество этажей: 1
- Стиль, разновидность: Дома в стиле Русский
- Форма: Прямоугольные дома
- Тип кровли: Дома с двускатной крышей
- Отделка: Без отделки
Отправьте свои контакты и мы расчитаем вам смету
Скорее всего вам подойдут следующие проекты домов:
Дом подходит для:
Дом подходит для:
Дом подходит для:









