Проект одноэтажного дома Проект ДБ №14 9,6х9
Площадь
86 м 2
Размер дома:
Этажей:
1
Спален:
3
Санузел:
0
Гараж:
Нет
Баня:
Нет
Терраса:
Нет
Панорамные окна:
Нет
Мастер-спальня:
Нет
О проекте
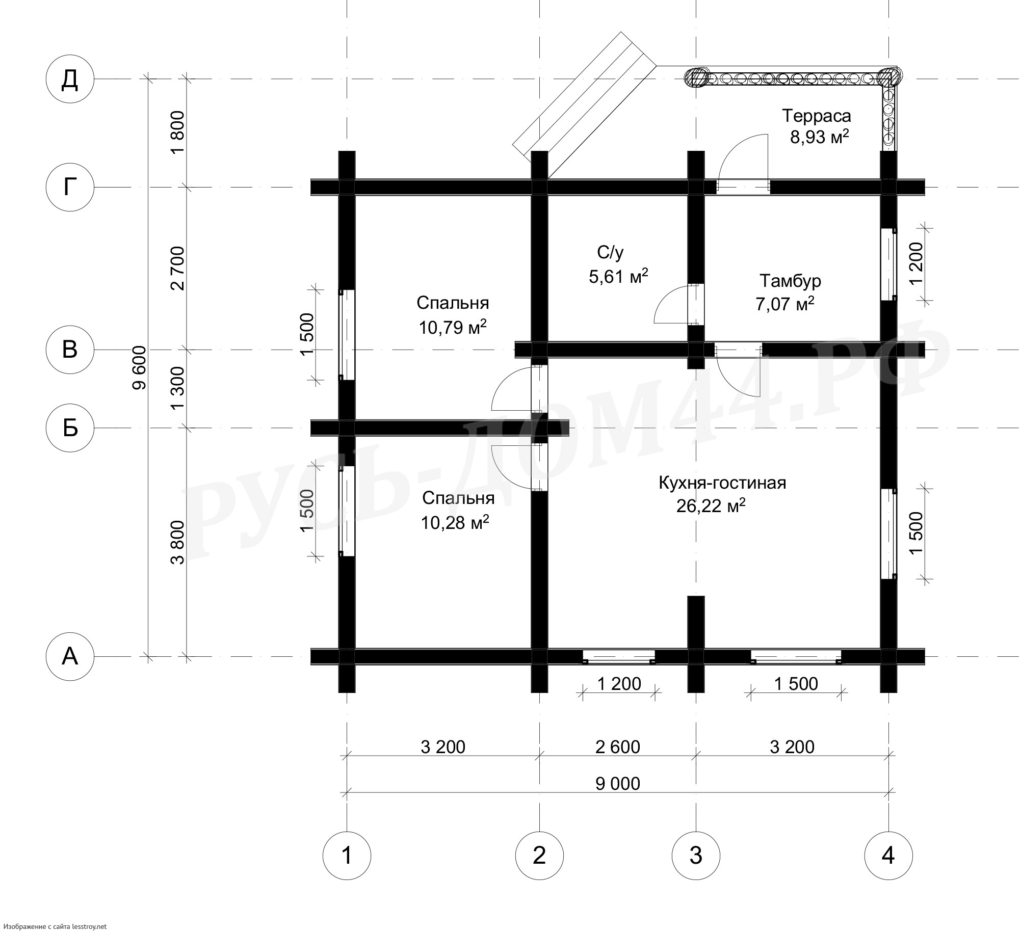
Проект сочетает в себе минимализм и уют, предлагая продуманное до мелочей пространство. Дом предлагает 127 м² рационально организованного интерьера. Архитектура выполнена в стиле дома в стиле русский. Бревна делает дом надёжным при любой погоде. Количество спален — 1, делая планировку гибкой.Характеристики
- Общая площадь: 86 м2
- Количество этажей: 1
- Стиль, разновидность: Дома в стиле Русский
- Форма: Прямоугольные дома
- Тип кровли: Дома с двускатной крышей
- Отделка: Без отделки
Отправьте свои контакты и мы расчитаем вам смету
Скорее всего вам подойдут следующие проекты домов:
Дом подходит для:
Дом подходит для:
Дом подходит для:









