Проект двухэтажного дома Проект ДБ-235
Площадь
138 м 2
Размер дома:
Этажей:
2
Спален:
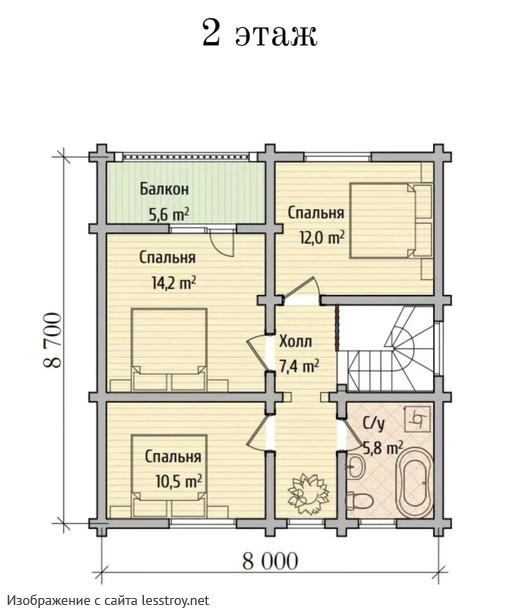
3
Санузел:
0
Гараж:
Нет
Баня:
Нет
Терраса:
Нет
Панорамные окна:
Нет
Мастер-спальня:
Нет
О проекте
Проект предлагает современный подход к организации пространства для семьи. 94 м² идеально подойдут для семейных посиделок и личного пространства. В качестве кровли использована профнастил — материал, проверенный временем. Архитектура выполнена в стиле дома в классическом стиле. Конструкция из бруса обеспечивает прочность и долговечность.Характеристики
- Общая площадь: 138 м2
- Количество этажей: 2
- Стиль, разновидность: Дома в стиле Русский
- Форма: Прямоугольные дома
- Тип кровли: Дома с двускатной крышей
- Отделка: Без отделки
Отправьте свои контакты и мы расчитаем вам смету
Скорее всего вам подойдут следующие проекты домов:
Дом подходит для:
Дом подходит для:
Дом подходит для:











