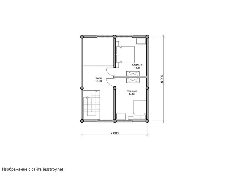
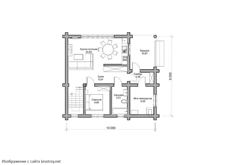
Проект двухэтажного дома Проект ДБ-237
Площадь
114 м 2
Размер дома:
9x10
Этажей:
2
Спален:
3
Санузел:
0
Гараж:
Нет
Баня:
Нет
Терраса:
Нет
Панорамные окна:
Нет
Мастер-спальня:
Нет
О проекте
Дом отличается современным стилем и удобной планировкой для семейной жизни.Простота и функциональность заключены в 80 м². Проект включает 2 спальни — удобно для семьи. Архитектура выполнена в стиле дома в классическом стиле. Двухэтажная рациональная планировка организует пространство максимально эффективно.Характеристики
- Общая площадь: 114 м2
- Количество этажей: 2
- Стиль, разновидность: Дома в стиле Русский
- Форма: Прямоугольные дома
- Тип кровли: Дома с двускатной крышей
- Отделка: Без отделки
- Размер: 9x10
Отправьте свои контакты и мы расчитаем вам смету
Скорее всего вам подойдут следующие проекты домов:
Дом подходит для:
Дом подходит для:
Дом подходит для:










