Проект двухэтажного дома Проект дома № 317
Площадь
196 м 2
Размер дома:
Этажей:
2
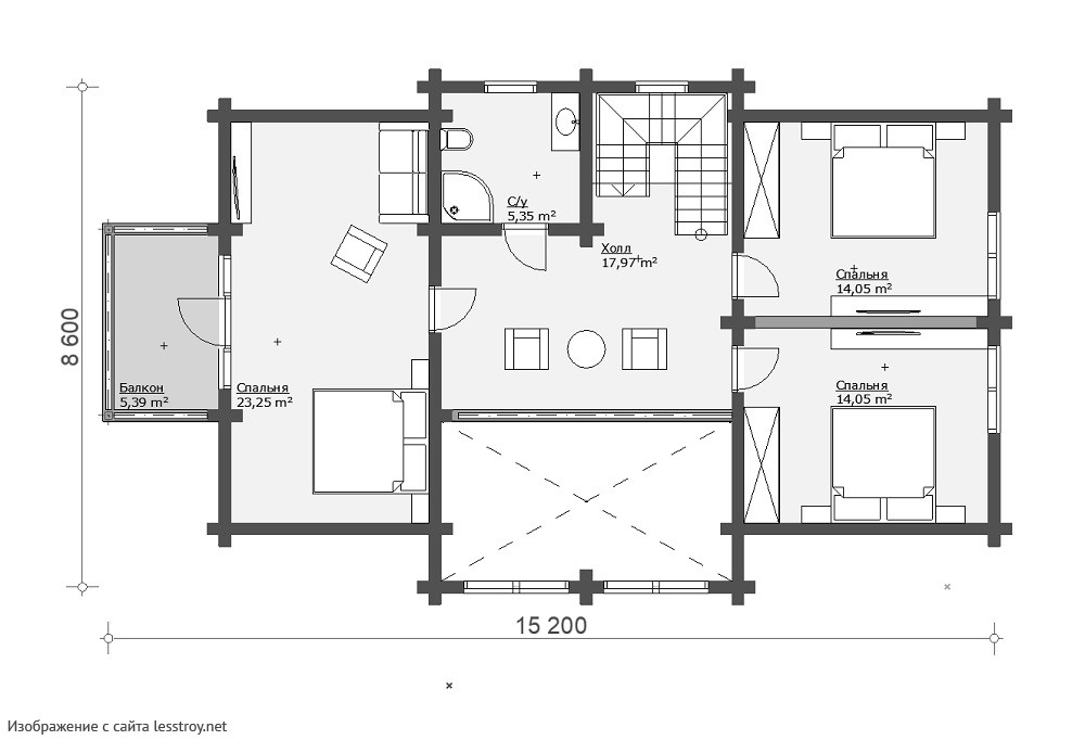
Спален:
3
Санузел:
0
Гараж:
Нет
Баня:
Нет
Терраса:
Нет
Панорамные окна:
Нет
Мастер-спальня:
Нет
О проекте
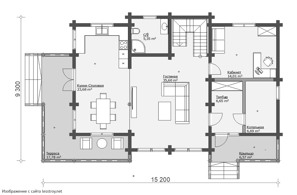
Просторный дом площадью 196 м² из профилированного бруса с тремя спальнями отличается финским стилем. Двухэтажная конструкция обеспечивает комфортное зонирование. Натуральные материалы делают атмосферу внутри уютной. Проект подойдет для тех, кто ценит скандинавский дизайн.Характеристики
- Общая площадь: 196 м2
- Количество этажей: 2
- Стиль, разновидность: Финские дома
- Форма: Квадратные дома
- Тип кровли: Дома с четырехскатной крышей (вальмовой)
- Отделка: Без отделки
Отправьте свои контакты и мы расчитаем вам смету
Скорее всего вам подойдут следующие проекты домов:
Дом подходит для:
Дом подходит для:
Дом подходит для:











