Проект одноэтажного дома Проект дома 8,125х9,375 Звенигород
Площадь
145 м 2
Размер дома:
8x9
Этажей:
1
Спален:
3
Санузел:
0
Гараж:
Нет
Баня:
Нет
Терраса:
Нет
Панорамные окна:
Нет
Мастер-спальня:
Нет
О проекте
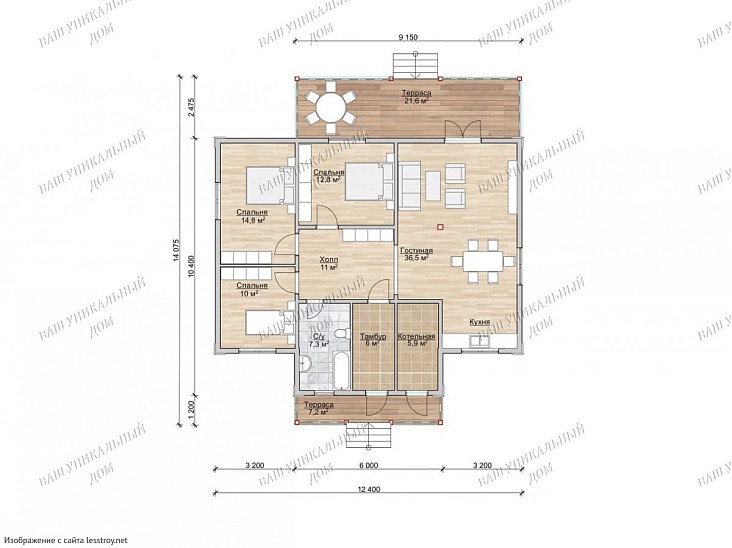
Дом, где даже в ненастный день царит солнечная атмосфера. Доступные 145 м² с разумным подходом к каждой зоне. Каркас делает дом надёжным при любой погоде. В доме предусмотрено 3 спальни, что важно для комфорта. Одноэтажная грамотная планировка организует пространство максимально эффективно.Характеристики
- Общая площадь: 145 м2
- Количество этажей: 1
- Стиль, разновидность: Дома в ином стиле
- Форма: Прямоугольные дома
- Тип кровли: Дома с иной крышей
- Отделка: Без отделки
- Размер: 8x9
Отправьте свои контакты и мы расчитаем вам смету
Скорее всего вам подойдут следующие проекты домов:
Дом подходит для:
Дом подходит для:
Дом подходит для:









