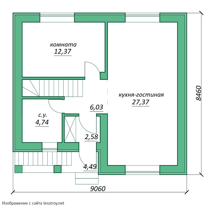
Проект двухэтажного дома Проект дома АС-120
Площадь
120 м 2
Размер дома:
9x9
Этажей:
2
Спален:
3
Санузел:
0
Гараж:
Нет
Баня:
Нет
Терраса:
Нет
Панорамные окна:
Нет
Мастер-спальня:
Нет
О проекте
Дом с продуманной до мелочей планировкой, модным оформлением и уютной атмосферой, создающий гармонию и комфорт для вашей идеальной жизни. Площадь 146 м² задаёт ритм современного быта. Двухэтажная удобная планировка обеспечивает практичное распределение комнат. Стены из бревна хорошо держат тепло и защищают от шума. Количество спален — 4, делая планировку гибкой.Характеристики
- Общая площадь: 120 м2
- Количество этажей: 2
- Стиль, разновидность: Дома в ином стиле
- Форма: Квадратные дома
- Тип кровли: Дома с многощипцовой крышей
- Отделка: Без отделки
- Размер: 9x9
Отправьте свои контакты и мы расчитаем вам смету
Скорее всего вам подойдут следующие проекты домов:
Дом подходит для:
Дом подходит для:
Дом подходит для:











