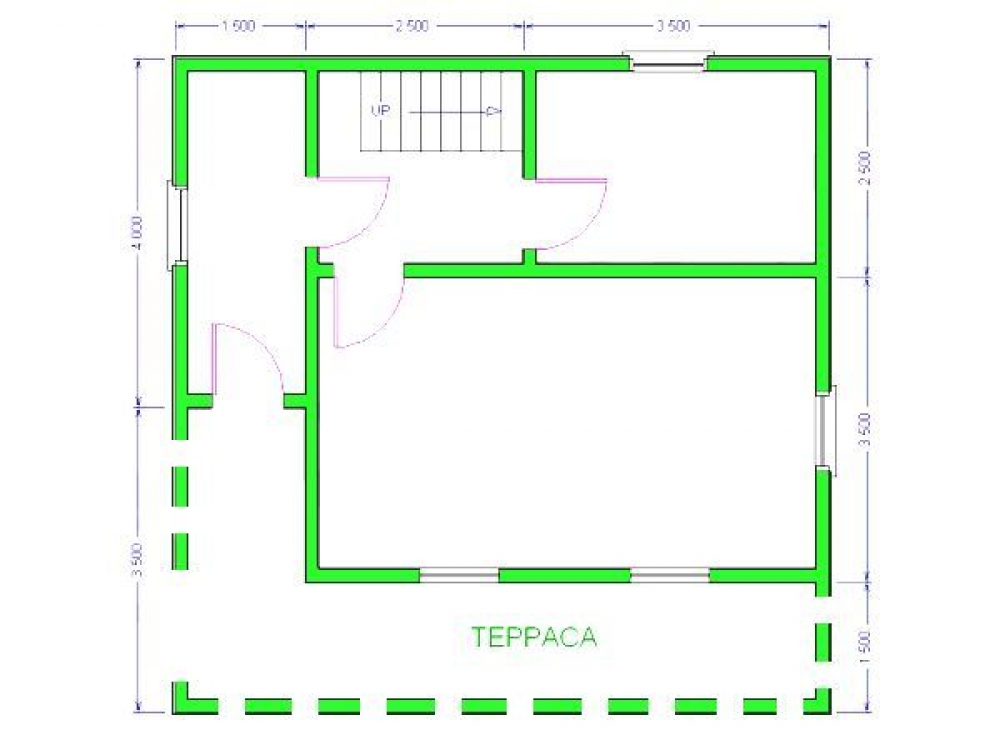
Проект двухэтажного дома Проект дома из бруса эконом Д-6
Площадь
78 м 2
Размер дома:
Этажей:
2
Спален:
1
Санузел:
0
Гараж:
Нет
Баня:
Нет
Терраса:
Нет
Панорамные окна:
Нет
Мастер-спальня:
Нет
О проекте
Дом, который становится вашей крепостью. 78 м² — дом, в который хочется возвращаться. Стены из Брус хорошо держат тепло и защищают от шума. Наличие 1 спальня удовлетворит запросы семьи с детьми. Двухэтажная современная планировка организует пространство максимально эффективно.Характеристики
- Общая площадь: 78 м2
- Количество этажей: 2
- Стиль, разновидность: Дома в ином стиле
- Тип кровли: Дома с мансардной крышей
- Отделка: Без отделки










