Проект двухэтажного дома Проект дома Шалаш
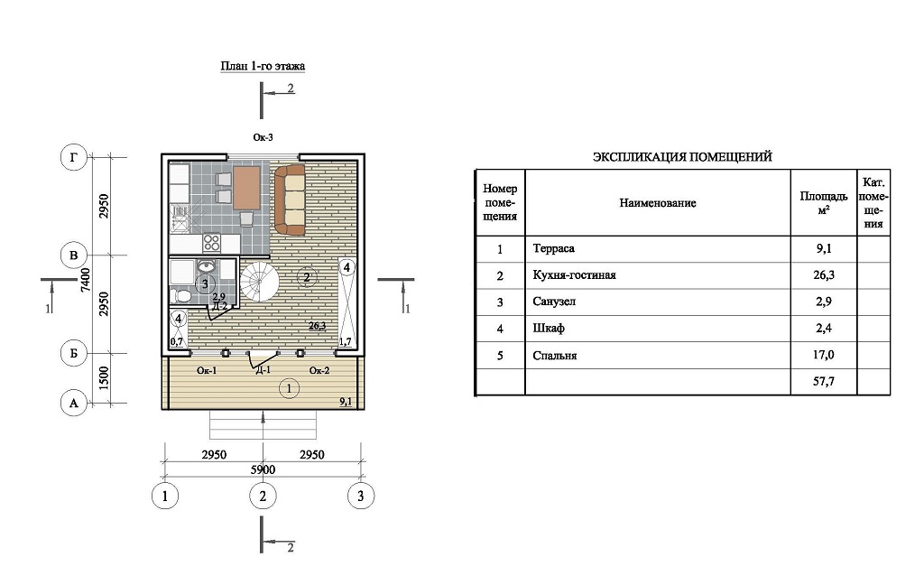
Площадь
57 м 2
Размер дома:
Этажей:
2
Спален:
1
Санузел:
0
Гараж:
Нет
Баня:
Нет
Терраса:
Нет
Панорамные окна:
Нет
Мастер-спальня:
Нет
О проекте
Дом, в котором можно спрятаться от всего мира.112 м² — дом, где всё работает на вас. В доме предусмотрено 2 спальни, что важно для комфорта. Двухэтажная современная планировка создаёт идеальные условия для жизни всей семьи. Дом спроектирован в духе дома в стиле русский.Характеристики
- Общая площадь: 57 м2
- Количество этажей: 2
- Стиль, разновидность: Дома в стиле A-frame (шалаш)
- Форма: Квадратные дома
- Тип кровли: Дома с двускатной крышей
- Отделка: Без отделки
Отправьте свои контакты и мы расчитаем вам смету
Скорее всего вам подойдут следующие проекты домов:
Дом подходит для:
Проект двухэтажного дома Каркасный дом А-фрейм 8.5х6. Проект ДК-115 «Вежа»
Семья с одним ребенком
Дом подходит для:
Дом подходит для:
Проект двухэтажного дома Каркасный дом А-фрейм 8.5х6. Проект ДК-114 «Заря»
Семья с одним ребенком
Дом подходит для:
Дом подходит для:














