Ваш город:

Проект двухэтажного дома Проект Дома Скарабей

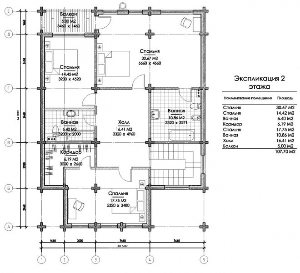
Площадь: 254 м2
Размер:
Дом подходит для:
Для большой семьи
Этажей:
2
Стены:
Кровля:
Рубероид
Цена:
Оставить заявку
Площадь
254 м 2
Размер дома:
Этажей:
2
Спален:
4
Санузел:
0
Гараж:
Нет
Баня:
Нет
Терраса:
Нет
Панорамные окна:
Нет
Мастер-спальня:
Нет
О проекте
Здесь осенний ветер рассказывает истории.254 м² — когда важно, чтобы было не много, но достаточно. Архитектура выполнена в стиле дома в классическом стиле. Бревна делает дом надёжным при любой погоде. Проект включает 4 спальни — удобно для семьи.

Характеристики
  • Общая площадь: 254 м2
  • Количество этажей: 2
  • Стиль, разновидность: Дома в ином стиле
  • Форма: Прямоугольные дома
  • Тип кровли: Дома с двускатной крышей
  • Отделка: Без отделки
Отправьте свои контакты и мы расчитаем вам смету
Прикрепить документ
Скорее всего вам подойдут следующие проекты домов: