Проект двухэтажного дома Проект дома «Старый Оскол»
Площадь
252 м 2
Размер дома:
12x13
Этажей:
2
Спален:
2
Санузел:
0
Гараж:
Нет
Баня:
Нет
Терраса:
Нет
Панорамные окна:
Нет
Мастер-спальня:
Нет
О проекте
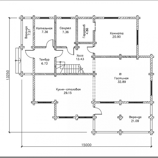
Дом из бруса площадью 252 м² впечатляет своими габаритами и благородным дизайном. Два этажа позволяют организовать пространство с максимальным удобством. Две спальни делают его идеальным для небольшой семьи, ценящей простор. Натуральные материалы обеспечивают экологичность и уют.Характеристики
- Общая площадь: 252 м2
- Количество этажей: 2
- Стиль, разновидность: Дома в ином стиле
- Форма: Квадратные дома
- Тип кровли: Дома с иной крышей
- Отделка: Без отделки
- Размер: 12x13
Отправьте свои контакты и мы расчитаем вам смету
Скорее всего вам подойдут следующие проекты домов:
Дом подходит для:
Проект двухэтажного дома Двухэтажный деревянный дом из бруса по проекту 58 ПБ
Для большой семьи
Дом подходит для:
Дом подходит для:
Дом подходит для:











