Проект двухэтажного дома Проект ДПБ-81
Площадь
97 м 2
Размер дома:
Этажей:
2
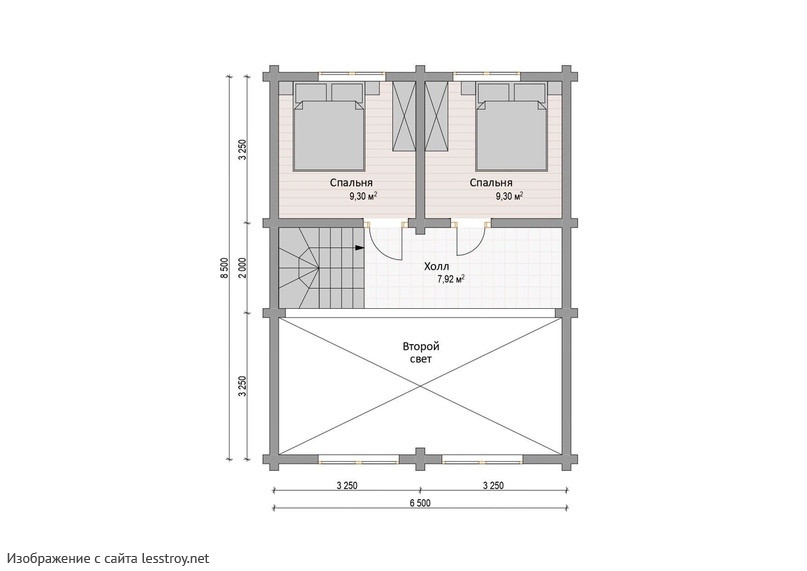
Спален:
3
Санузел:
0
Гараж:
Нет
Баня:
Нет
Терраса:
Нет
Панорамные окна:
Нет
Мастер-спальня:
Нет
О проекте
В этом решении нет ничего лишнего — только комфорт и продуманность.Дом с 72 м² — отличное начало для загородной жизни. Проект включает 1 спальня — удобно для семьи. профнастил придаёт дому выразительность и надёжность. Выбор бруса обусловлен его теплоизоляционными свойствами.Характеристики
- Общая площадь: 97 м2
- Количество этажей: 2
- Стиль, разновидность: Дома в стиле Русский
- Форма: Прямоугольные дома
- Тип кровли: Дома с двускатной крышей
- Отделка: Без отделки
Отправьте свои контакты и мы расчитаем вам смету
Скорее всего вам подойдут следующие проекты домов:
Дом подходит для:
Дом подходит для:
Дом подходит для:












