Проект одноэтажного дома Проект одноэтажного дома АС-114
Площадь
114 м 2
Размер дома:
12x12
Этажей:
1
Спален:
3
Санузел:
0
Гараж:
Нет
Баня:
Нет
Терраса:
Нет
Панорамные окна:
Нет
Мастер-спальня:
Нет
О проекте
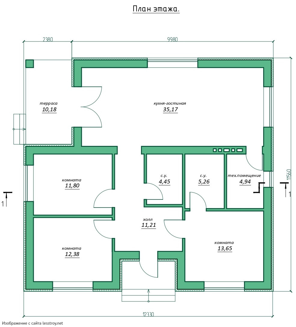
Дом с премиальным дизайном, где каждая деталь говорит о вкусе, а атмосфера наполнена уютом и гармонией. 110 м² — оптимальный метраж для комфорта и уединения. Стены из кирпича хорошо держат тепло и защищают от шума. Проект включает 3 спальни — удобно для семьи. В качестве кровли использована битумная черепица — материал, проверенный временем.Характеристики
- Общая площадь: 114 м2
- Количество этажей: 1
- Стиль, разновидность: Дома в ином стиле
- Форма: Квадратные дома
- Тип кровли: Дома с многощипцовой крышей
- Отделка: Без отделки
- Размер: 12x12
Отправьте свои контакты и мы расчитаем вам смету
Скорее всего вам подойдут следующие проекты домов:
Проект одноэтажного дома Арлекино
Семья с двумя детьми
Дом подходит для:
Дом подходит для:
Проект одноэтажного дома АСД-1003
Семья с двумя детьми
Дом подходит для:
Дом подходит для:







