Проект двухэтажного дома Проект рубленного дома-бани АДРИАТИКА, диаметр 360 мм
Площадь
293 м 2
Размер дома:
12x17
Этажей:
2
Спален:
3
Санузел:
0
Гараж:
Нет
Баня:
Нет
Терраса:
Нет
Панорамные окна:
Нет
Мастер-спальня:
Нет
О проекте
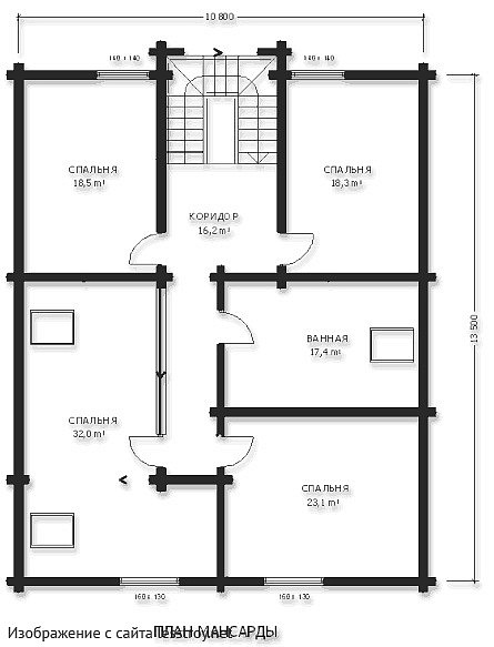
Роскошный двухэтажный сруб площадью 293 м² из рубленного бревна диаметром 360 мм - воплощение русских традиций в современном исполнении. Три просторные спальни с массивными деревянными стенами создают атмосферу старинной усадьбы. Особое внимание привлекает банный комплекс, выполненный в едином стиле с основным домом.Характеристики
- Общая площадь: 293 м2
- Количество этажей: 2
- Стиль, разновидность: Дома в стиле Русский
- Форма: Т-образные дома
- Тип кровли: Дома с двускатной крышей
- Отделка: Без отделки
- Размер: 12x17
Отправьте свои контакты и мы расчитаем вам смету
Скорее всего вам подойдут следующие проекты домов:
Дом подходит для:
Дом подходит для:
Дом подходит для:










