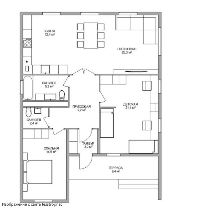
Проект одноэтажного дома Проект S-103
Площадь
103 м 2
Размер дома:
10x12
Этажей:
1
Спален:
1
Санузел:
0
Гараж:
Нет
Баня:
Нет
Терраса:
Нет
Панорамные окна:
Нет
Мастер-спальня:
Нет
О проекте
В этом проекте ритмы мегаполиса гармонируют с тишиной семейного счастья. В этих 80 м² легко организовать рабочую и зону отдыха. Двухэтажная рациональная планировка организует пространство максимально эффективно. Выбор бруса обусловлен его теплоизоляционными свойствами. В доме предусмотрено 2 спальни, что важно для комфорта.Характеристики
- Общая площадь: 103 м2
- Количество этажей: 1
- Стиль, разновидность: Дома в ином стиле
- Форма: Прямоугольные дома
- Тип кровли: Дома с плоской крышей
- Отделка: Без отделки
- Размер: 10x12
Отправьте свои контакты и мы расчитаем вам смету
Скорее всего вам подойдут следующие проекты домов:
Дом подходит для:
Дом подходит для:
Дом подходит для:










