Проект двухэтажного дома Проект СКАНДИНАВИЯ
Площадь
268 м 2
Размер дома:
12x14
Этажей:
2
Спален:
4
Санузел:
0
Гараж:
Нет
Баня:
Нет
Терраса:
Нет
Панорамные окна:
Нет
Мастер-спальня:
Нет
О проекте
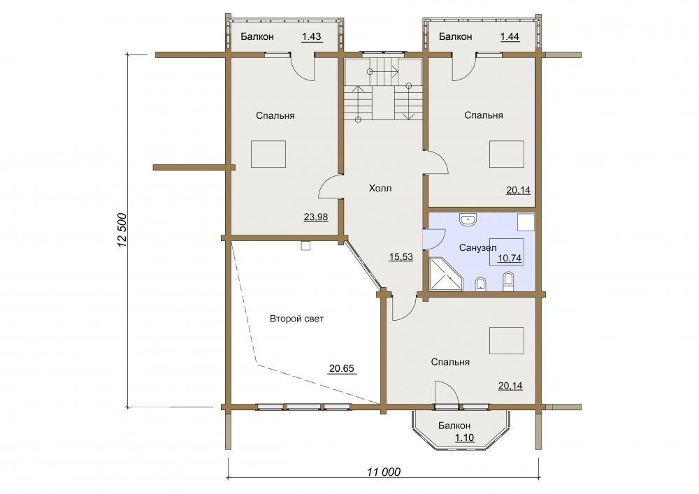
Дом из бруса площадью 268 м² воплощает в себе элегантность и функциональность. Натуральное дерево создает неповторимую атмосферу уюта и тепла. Проект включает множество светлых помещений, что делает его идеальным для семейного проживания. Дом подойдет тем, кто ценит качество и природные материалы.Характеристики
- Общая площадь: 268 м2
- Количество этажей: 2
- Стиль, разновидность: Финские дома
- Форма: Квадратные дома
- Тип кровли: Дома с двускатной крышей
- Отделка: Без отделки
- Размер: 12x14
Отправьте свои контакты и мы расчитаем вам смету
Скорее всего вам подойдут следующие проекты домов:
Дом подходит для:
Дом подходит для:
Дом подходит для:








