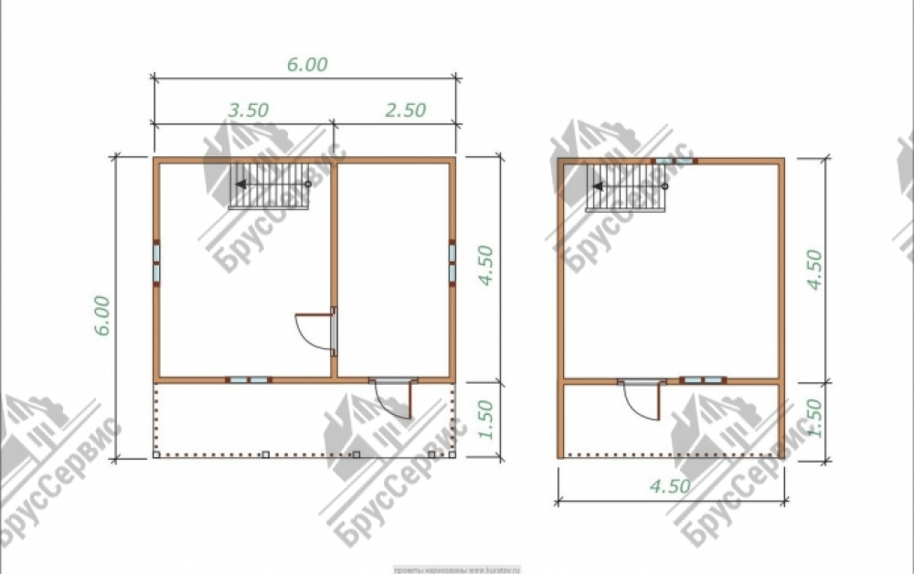
Проект двухэтажного дома Проет Д-5
Площадь
54 м 2
Размер дома:
6x6
Этажей:
2
Спален:
2
Санузел:
0
Гараж:
Нет
Баня:
Нет
Терраса:
Нет
Панорамные окна:
Нет
Мастер-спальня:
Нет
О проекте
Жилище, где можно устроить офис, не жертвуя комфортом. Эргономичное пространство на 54 м² радует глаз и душу. Материал кровли — ондулин, что добавляет зданию индивидуальность. Наличие 2 спальни удовлетворит запросы семьи с детьми. Архитектура выполнена в стиле дома в классическом стиле.Характеристики
- Общая площадь: 54 м2
- Количество этажей: 2
- Стиль, разновидность: Дома в ином стиле
- Форма: Квадратные дома
- Тип кровли: Дома с купольной крышей
- Отделка: Без отделки
- Размер: 6x6








