Проект одноэтажного дома РАУМ 203
Площадь
203 м 2
Размер дома:
Этажей:
1
Спален:
2
Санузел:
0
Гараж:
Нет
Баня:
Нет
Терраса:
Нет
Панорамные окна:
Нет
Мастер-спальня:
Нет
О проекте
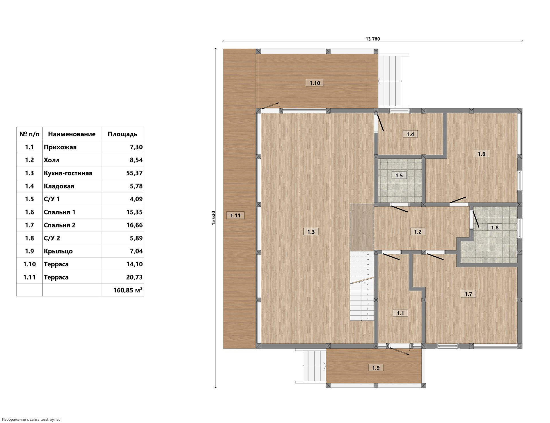
Каркасный дом площадью 203 м² — это воплощение легкости и практичности. Современные технологии строительства обеспечивают долговечность и энергоэффективность. Пространство организовано так, чтобы удовлетворить все потребности жильцов. Это отличный выбор для тех, кто ищет стильное и функциональное жилье.Характеристики
- Общая площадь: 203 м2
- Количество этажей: 1
- Стиль, разновидность: Дома в стиле Шале
- Форма: Прямоугольные дома
- Тип кровли: Дома с двускатной крышей
- Отделка: Без отделки
Отправьте свои контакты и мы расчитаем вам смету
Скорее всего вам подойдут следующие проекты домов:
Проект одноэтажного дома Сканди 197
Семья с двумя детьми
Дом подходит для:
Дом подходит для:
Проект одноэтажного дома Сканди 180
Семья с двумя детьми
Дом подходит для:
Дом подходит для:
Проект одноэтажного дома Сканди 195
Семья с двумя детьми
Дом подходит для:
Дом подходит для:












