Ваш город:

Проект одноэтажного дома Ричмонд

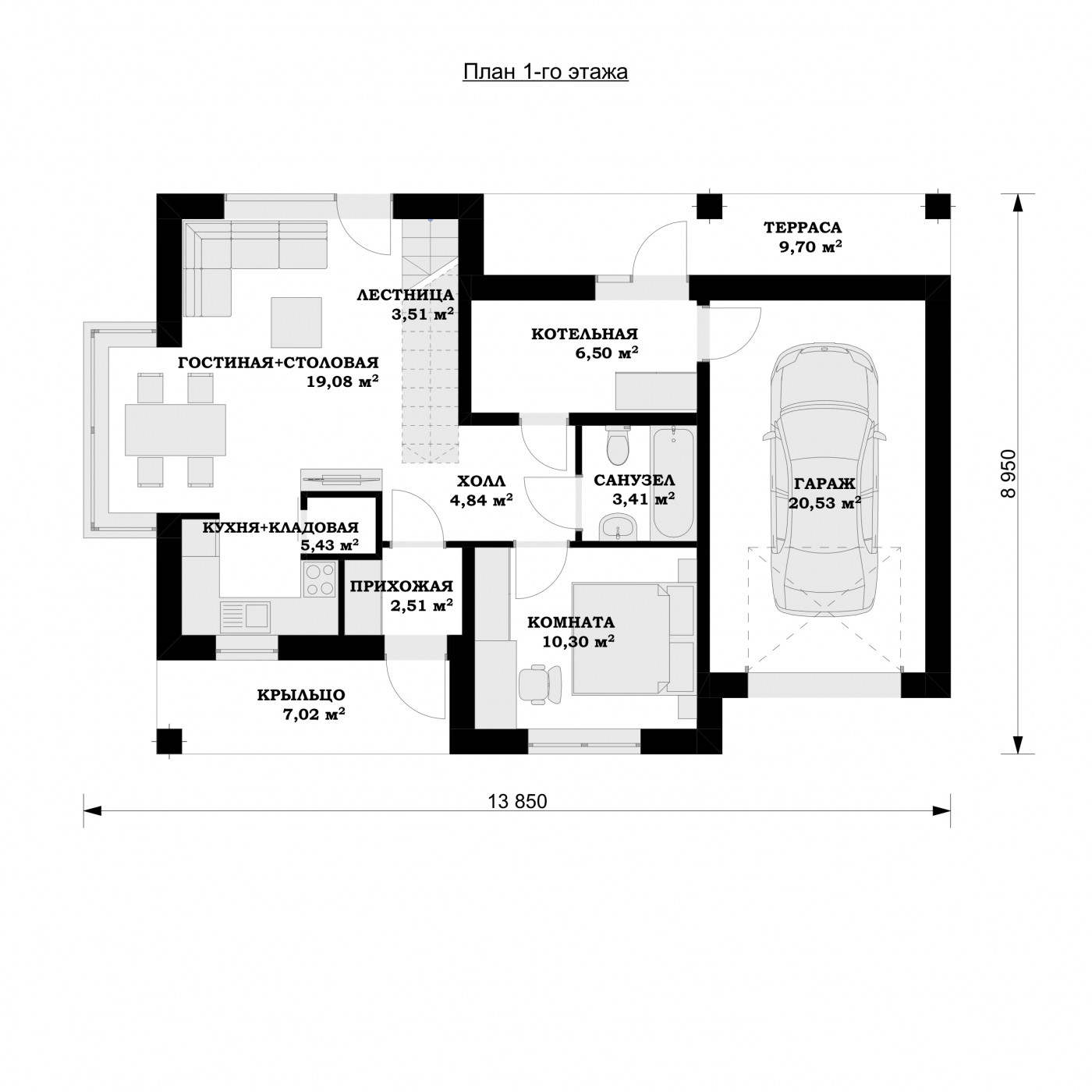
Площадь: 94 м2
Размер: 14.00 × 9.00
Дом подходит для:
Семья с одним ребенком
Этажей:
1
Кровля:
Металлочерепица
Цена:
Оставить заявку
Площадь
94 м 2
Размер дома:
14.00 × 9.00
Этажей:
1
Спален:
1
Санузел:
1
Гараж:
Да
Баня:
Нет
Терраса:
Нет
Панорамные окна:
Нет
Мастер-спальня:
Нет
Фасады
О проекте
Дом, где простота и элегантность сочетаются с практичностью. Площадь 94 м² с жилыми 75 м² идеальна для уютной жизни. Керамзитобетонные стены гарантируют тепло и тишину, а лаконичный дизайн подчеркивает современность. Интерьеры наполнены светом, делая их по-настоящему домашними.

Характеристики
  • Общая площадь: 93.6 м2
  • Жилая площадь: 75 м2
  • Количество этажей: 1
  • Гараж: 20,53
  • Площадь кровли: 97 м2
  • Отделка: Без отделки
  • Фундамент: Дома с плитным фундаментом
Материалы и перечень работ
  • Фундамент - ребристая плита "перевернутая чаша"
  • Бетон М350 (В25)
  • Рабочая арматура А500С – 12мм
  • Армирование плиты в два уровня ячейкой 200х200мм
  • Гидроизоляция плиты – профилированная мембрана Planter
  • Внутренние несущие стены 200мм газобетон / 200мм керамика
  • Блоки газобетонные Bonolit D500; / Теплая керамика Porotherm
  • Кладка на тонкошовный клей; / Теплый раствор
  • Утепленный монолитный армопояс
  • Армирование кладки через каждые 3 ряда - А3 d6мм;
  • Стропила – доска обрезная 150х50мм
  • Контробрешетка – брусок обрезной 40х40мм
  • Шаговая обрешетка – обрезная доска 100х25мм
  • Гидроизоляционная мембрана
  • Кровля – металлочерепица Монтерей РЕ 0,45 Grandline/ Гибкая черепица Shinglas Ранчо по OSB 9мм
  • В стоимость не входит
  • Закладные трубы коммуникаций
  • Устройство канализационной трассы с выводом за пределы фундамента;
  • Наружные стены 400мм газобетон / 440мм керамика
  • Фундамент - ребристая плита "перевернутая чаша"
  • Бетон М350 (В25)
  • Рабочая арматура А500С – 12мм
  • Армирование плиты в два уровня ячейкой 200х200мм
  • Гидроизоляция плиты – профилированная мембрана Planter
  • Внутренние несущие стены 200мм газобетон / 200мм керамика
  • Блоки газобетонные Bonolit D500; / Теплая керамика Porotherm
  • Кладка на тонкошовный клей; / Теплый раствор
  • Утепленный монолитный армопояс
  • Армирование кладки через каждые 3 ряда - А3 d6мм;
  • Стропила – доска обрезная 150х50мм
  • Контробрешетка – брусок обрезной 40х40мм
  • Шаговая обрешетка – обрезная доска 100х25мм
  • Гидроизоляционная мембрана
  • Кровля – металлочерепица Монтерей РЕ 0,45 Grandline/ Гибкая черепица Shinglas Ранчо по OSB 9мм
  • В стоимость не входит
  • Закладные трубы коммуникаций
  • Устройство канализационной трассы с выводом за пределы фундамента;
  • Наружные стены 400мм газобетон / 440мм керамика
Что еще входит в стоимость:
Персональный менеджер
Технический надзор
Фото и видеоотчет
Отправьте свои контакты и мы расчитаем вам смету
Прикрепить документ
Скорее всего вам подойдут следующие проекты домов: