Проект одноэтажного дома Рихард
Дом подходит для:
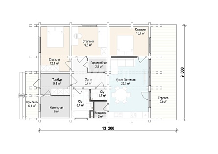
Площадь
114 м 2
Размер дома:
9x13,2
Этажей:
1
Спален:
3
Санузел:
2
Гараж:
Нет
Баня:
Нет
Терраса:
Нет
Панорамные окна:
Нет
Мастер-спальня:
Нет
Планировка
Характеристики
- Общая площадь: 113.7 м2
- Жилая площадь: 92 м2
- Количество этажей: 1
- Гараж: нет
- Площадь кровли: 118 м2
- Отделка: Без отделки
- Фундамент: Дома со свайным фундаментом
Материалы и перечень работ
- Фундамент на ЖБ сваях с металлическим оголовком
- Брусовая обвязка ЖБ фундамента
- Стеновой комплект: Клееный брус 160х190 мм
- Брус клееный стеновой 160х190. немецкий профиль
- Балки перекрытия
- Комплектующие, крепеж, метизы, расходные материалы
- Черновой пол
- Кровля: металлочерепица Grand Line
- Стропила
- Утепление 200 мм, Rockwool
- Паро - гидроизоляционная мембрана
- Комплектующие, расходные материалы
- Окна Rehau и двери
- Входная дверь с терморазрывом
- ПВХ-профиль 70 мм, Рехау, фурнитура Roto
- Комплектующие, расходные материалы
- В стоимость не входит
- В стоимость не входит
- Фундамент на ЖБ сваях с металлическим оголовком
- Брусовая обвязка ЖБ фундамента
- Стеновой комплект: Клееный брус 160х190 мм
- Брус клееный стеновой 160х190. немецкий профиль
- Балки перекрытия
- Комплектующие, крепеж, метизы, расходные материалы
- Черновой пол
- Кровля: металлочерепица Grand Line
- Стропила
- Утепление 200 мм, Rockwool
- Паро - гидроизоляционная мембрана
- Комплектующие, расходные материалы
- Окна Rehau и двери
- Входная дверь с терморазрывом
- ПВХ-профиль 70 мм, Рехау, фурнитура Roto
- Комплектующие, расходные материалы
- В стоимость не входит
- В стоимость не входит
Что еще входит в стоимость:
Отправьте свои контакты и мы расчитаем вам смету
Скорее всего вам подойдут следующие проекты домов:
Дом подходит для:
Дом подходит для:
Проект одноэтажного дома Проект брусового дома 6х8 Дачный ДБ-75
Семья с одним ребенком
Дом подходит для:
Дом подходит для:













