Проект одноэтажного дома Руан
Дом подходит для:
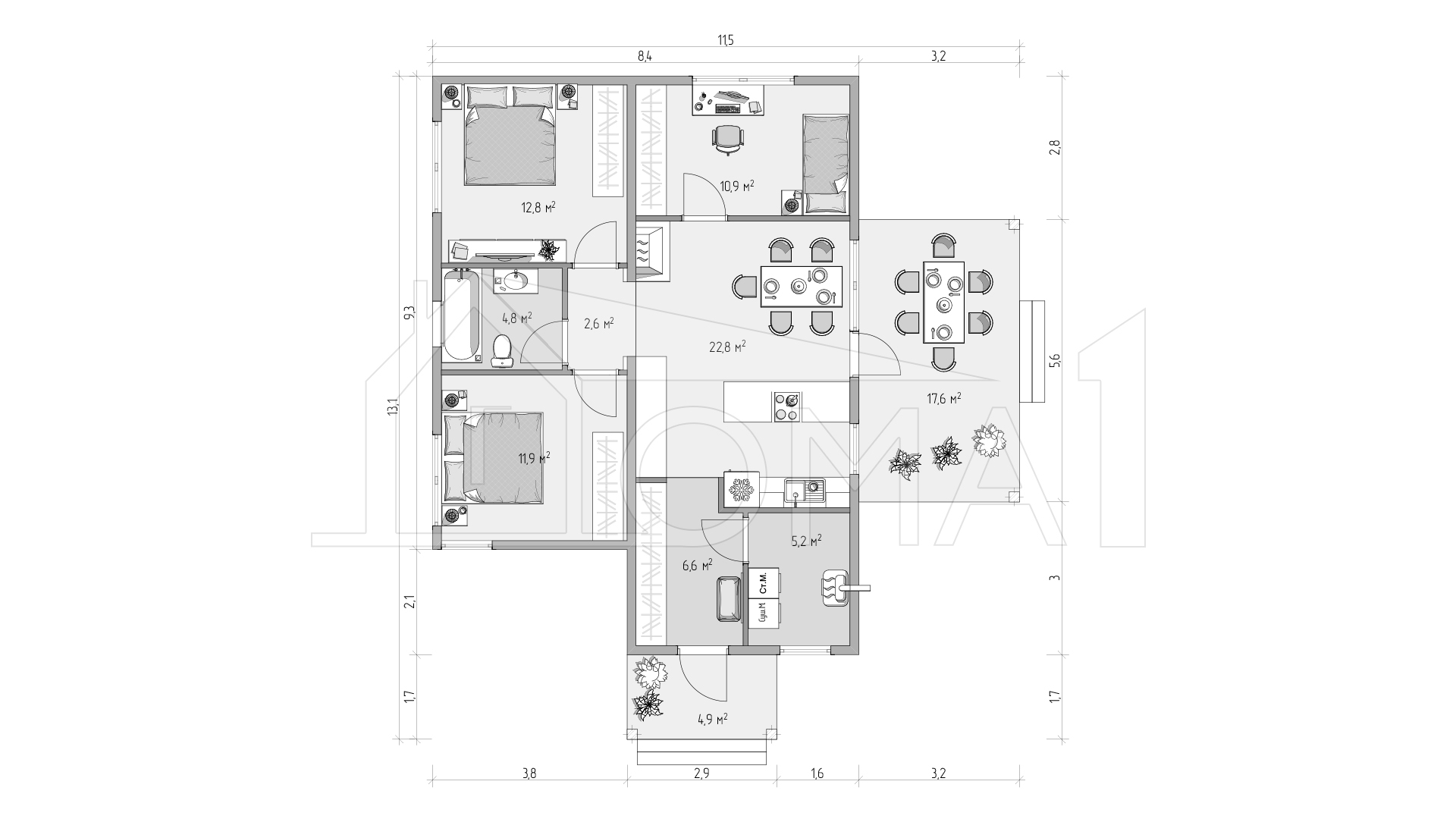
Площадь
93 м 2
Размер дома:
13,1 х 8,4
Этажей:
1
Спален:
3
Санузел:
1
Гараж:
Нет
Баня:
Нет
Терраса:
Нет
Панорамные окна:
Нет
Мастер-спальня:
Нет
Планировка
Фасады
О проекте
Этот проект — воплощение баланса между стилем и практичностью. С площадью 93 м² и жилыми 71 м² дом идеален для семьи с детьми. Каркасная технология гарантирует тепло и тишину, а продуманная планировка делает жизнь комфортной. Интерьеры дышат естественностью, создавая ощущение гармонии.Характеристики
- Общая площадь: 93 м2
- Жилая площадь: 71 м2
- Количество этажей: 1
- Гараж: нет
- Площадь кровли: 98 м2
- Отделка: Без отделки
- Фундамент: Дома со свайным фундаментом
Материалы и перечень работ
- Винтовые сваи: Ø108мм; Толщина стенки 4мм;
- Сварной наконечник 300мм, L=2500мм;
- Монтаж спецтехникой ниже глубины промерзания 1.5-1.6м;
- Гильза сваи заполняется пескобетоном М300;
- Приваривается металлический оголовок 200х200мм;
- Высота потолка 1-го и 2-го этажей: 2500 мм между балок перекрытий (опционально 2800 мм);
- Древесина для соединения панелей 1-го сорта строганная камерной сушки;
- СИП панели 174мм (OSB-3, толщиной 12 мм; фасадный самозатухающий пенополистирол ППС).
- Стропила сечением 45х195 мм, контробрешетка сечением 40х40 мм, обрешетка сечением 25х100 мм. Вся древесина хвойных пород камерной сушки;
- Гидро-ветроизоляционная мембрана. Инновационный базальтовый плитный утеплитель «Rockwool Лайт Баттс Скандик» / «Paroc extra Light» толщиной 200мм. Паро-гидроизоляционная мембрана;
- Металлочерепица Grand Line толщиной 0,5 мм, покрытие Satin, цвет на выбор: RAL 8017 шоколад, RAL 6005 зеленый мох, RAL 3005 красное вино, RAL 7024 мокрый асфальт.
- В стоимость не входят
- В стоимость не входит
- В стоимость не входит
- Винтовые сваи: Ø108мм; Толщина стенки 4мм;
- Сварной наконечник 300мм, L=2500мм;
- Монтаж спецтехникой ниже глубины промерзания 1.5-1.6м;
- Гильза сваи заполняется пескобетоном М300;
- Приваривается металлический оголовок 200х200мм;
- Высота потолка 1-го и 2-го этажей: 2500 мм между балок перекрытий (опционально 2800 мм);
- Древесина для соединения панелей 1-го сорта строганная камерной сушки;
- СИП панели 174мм (OSB-3, толщиной 12 мм; фасадный самозатухающий пенополистирол ППС).
- Стропила сечением 45х195 мм, контробрешетка сечением 40х40 мм, обрешетка сечением 25х100 мм. Вся древесина хвойных пород камерной сушки;
- Гидро-ветроизоляционная мембрана. Инновационный базальтовый плитный утеплитель «Rockwool Лайт Баттс Скандик» / «Paroc extra Light» толщиной 200мм. Паро-гидроизоляционная мембрана;
- Металлочерепица Grand Line толщиной 0,5 мм, покрытие Satin, цвет на выбор: RAL 8017 шоколад, RAL 6005 зеленый мох, RAL 3005 красное вино, RAL 7024 мокрый асфальт.
- В стоимость не входят
- В стоимость не входит
- В стоимость не входит
Что еще входит в стоимость:
Отправьте свои контакты и мы расчитаем вам смету
Скорее всего вам подойдут следующие проекты домов:
Дом подходит для:
Дом подходит для:
Дом подходит для:










