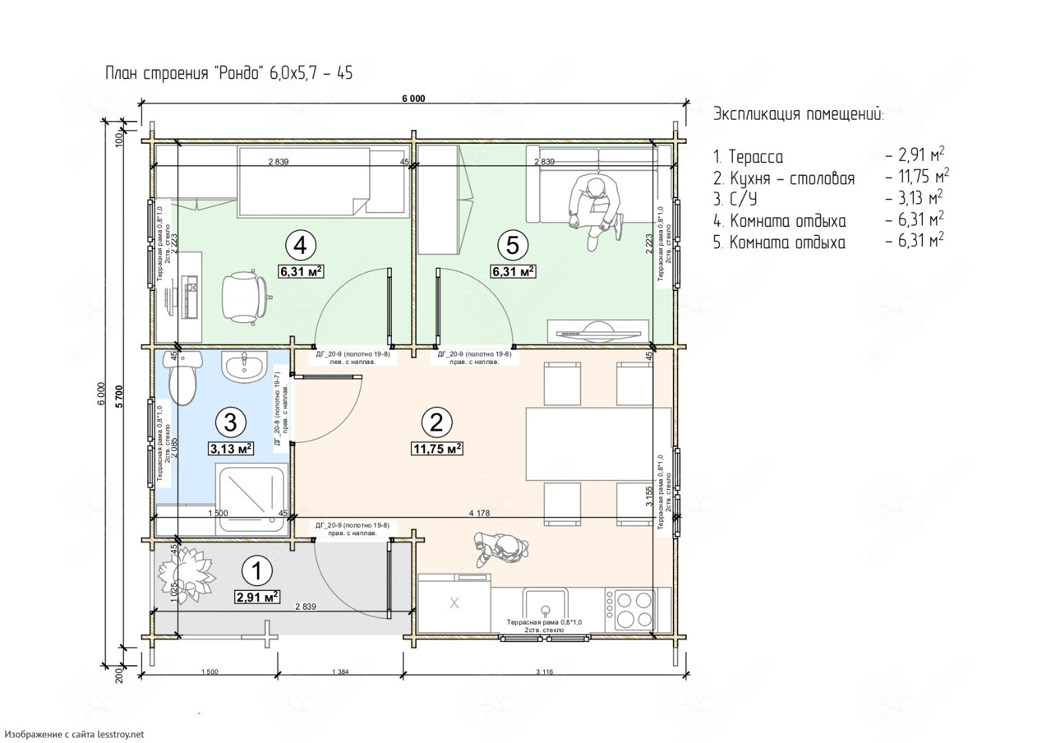
Проект одноэтажного дома Садовый домик Рондо 6.0x5.7 м, площадь 30.5 кв.м., брус 135х45/60/90
Площадь
30 м 2
Размер дома:
Этажей:
1
Спален:
2
Санузел:
0
Гараж:
Нет
Баня:
Нет
Терраса:
Нет
Панорамные окна:
Нет
Мастер-спальня:
Нет
О проекте
Удобство в каждой детали. 212 м² жилой зоны подойдут как для семьи, так и для пары. Это двухэтажная структура, которая обеспечивает практичное распределение комнат. Количество спален — 4, делая планировку гибкой. Конструкция из бруса обеспечивает прочность и долговечность.Характеристики
- Общая площадь: 30 м2
- Количество этажей: 1
- Стиль, разновидность: Дома в стиле Русский
- Форма: Прямоугольные дома
- Тип кровли: Дома с двускатной крышей
- Отделка: Без отделки









