Проект двухэтажного дома Сан-Ремо
Площадь
156 м 2
Размер дома:
Этажей:
2
Спален:
4
Санузел:
0
Гараж:
Нет
Баня:
Нет
Терраса:
Нет
Панорамные окна:
Нет
Мастер-спальня:
Нет
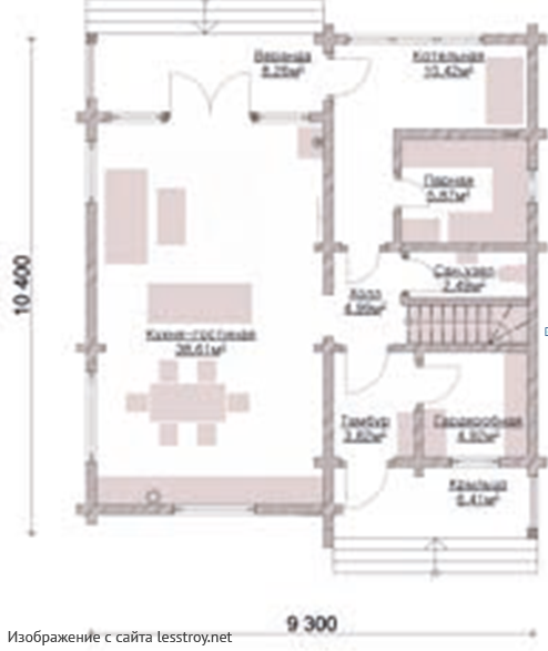
О проекте
Элегантный двухэтажный дом из профилированного бруса площадью 156 м² с четырьмя спальнями сочетает в себе средиземноморское очарование и русские традиции деревянного зодчества. Тёплые тона натуральной древесины создают уютную атмосферу, а металлочерепица придаёт современный акцент.Характеристики
- Общая площадь: 156 м2
- Количество этажей: 2
- Стиль, разновидность: Дома в ином стиле
- Форма: Прямоугольные дома
- Тип кровли: Дома с двускатной крышей
- Отделка: Без отделки
Отправьте свои контакты и мы расчитаем вам смету
Скорее всего вам подойдут следующие проекты домов:
Дом подходит для:
Дом подходит для:
Дом подходит для:










