Проект одноэтажного дома Санремо БК-200-45
Площадь
150 м 2
Размер дома:
Этажей:
1
Спален:
2
Санузел:
0
Гараж:
Нет
Баня:
Нет
Терраса:
Нет
Панорамные окна:
Нет
Мастер-спальня:
Нет
О проекте
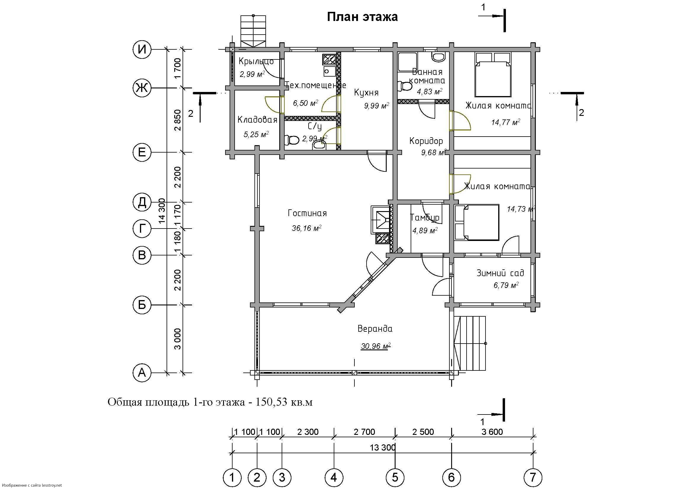
Проект, в котором галереи соединяют пространство. Жилая площадь составляет 150 м² — идеально для комфортной жизни. В доме предусмотрено 2 спальни, что важно для комфорта. Одноэтажная грамотная планировка создаёт идеальные условия для жизни всей семьи. Рубероид придаёт дому выразительность и надёжность.Характеристики
- Общая площадь: 150 м2
- Количество этажей: 1
- Стиль, разновидность: Дома в ином стиле
- Форма: Квадратные дома
- Тип кровли: Дома с четырехскатной крышей (вальмовой)
- Отделка: Без отделки
Отправьте свои контакты и мы расчитаем вам смету
Скорее всего вам подойдут следующие проекты домов:
Дом подходит для:
Дом подходит для:
Проект одноэтажного дома Дом из бруса ДБ-66 проект Технология
Семья с одним ребенком
Дом подходит для:
Дом подходит для:














