Проект двухэтажного дома Селигер
Дом подходит для:
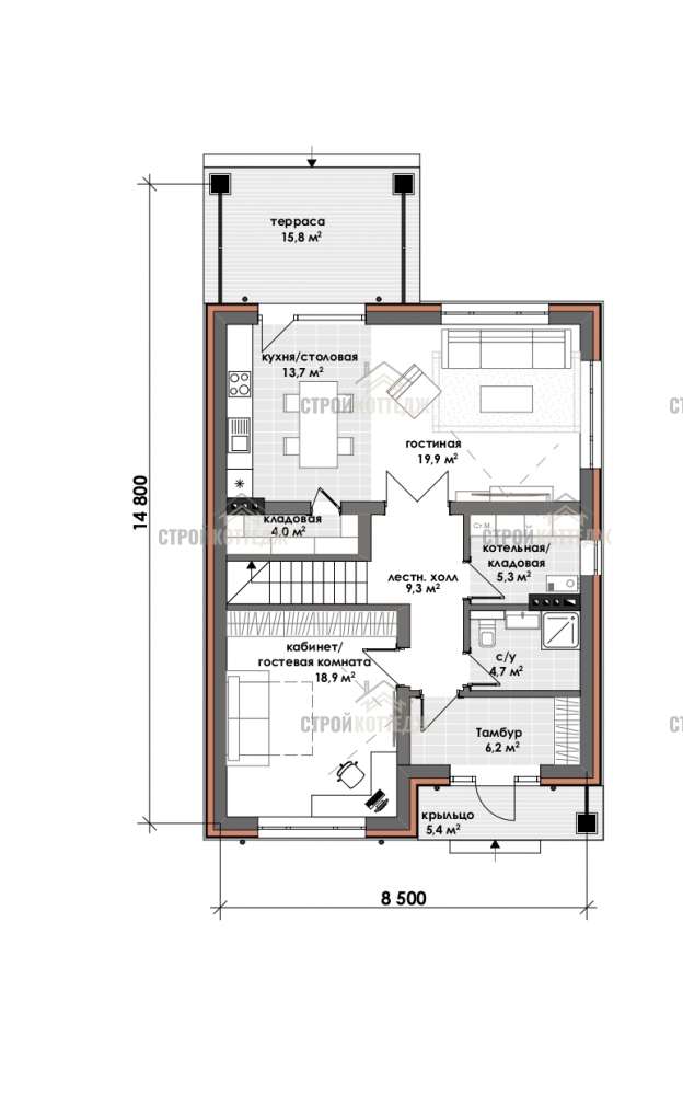
Площадь
240 м 2
Размер дома:
14.8х8.5
Этажей:
2
Спален:
3
Санузел:
2
Гараж:
Нет
Баня:
Нет
Терраса:
Нет
Панорамные окна:
Нет
Мастер-спальня:
Нет
Планировка
Характеристики
- Общая площадь: 240 м2
- Жилая площадь: 162 м2
- Количество этажей: 2
- Гараж: нет
- Площадь кровли: 243 м2
- Отделка: Без отделки
- Фундамент: Дома с плитным фундаментом
Материалы и перечень работ
- Монолитная ж/б плита 250 мм;
- Вязка арматурных сеток фундаментной плиты в 2 ряда
- Устройство песчаной подушки 300 мм;
- Бетон М-350 (В25) сертифицированный;
- Монтаж опалубки;
- Внутренние перегородки из газобетонных блоков плотностью D500 – 300мм;
- Укладка первого ряда на гидроизоляцию;
- Кладка блоков изготовлена на клеевой состав;
- Арматура Д6 (армирование кладки)
- Монолитный ж/б пояс 200х200 мм с утеплением и кладкой доборного блока;
- Стропильная конструкция из сухой строганной доски
- Доска хв.пород сухая строганная (обрешетка сверху) - 25х150х6000 мм
- Металлочерепица классик 0,5 Satin RAL 8017 шоколад
- Утеплитель Rockwool Лайт Баттс Скандик 800х600х50 мм
- Гидро-ветрозащитная мембрана;
- Окна REHAU с 2-х камерным стеклопакетом и ламинацией (3 стекла) - профиль - 60 мм
- Двухконтурное использование черного цвета;
- Усиленное армирование 1,5 мм;
- Все расходные и сопутствующие материалы необходимые для установки;
- Закладные под коммуникации - электричество, водоснабжение и канализация;
- Внешние несущие стены из газобетонных блоков плотностью D500 – 400 мм;
- Монолитная ж/б плита 250 мм;
- Вязка арматурных сеток фундаментной плиты в 2 ряда
- Устройство песчаной подушки 300 мм;
- Бетон М-350 (В25) сертифицированный;
- Монтаж опалубки;
- Внутренние перегородки из газобетонных блоков плотностью D500 – 300мм;
- Укладка первого ряда на гидроизоляцию;
- Кладка блоков изготовлена на клеевой состав;
- Арматура Д6 (армирование кладки)
- Монолитный ж/б пояс 200х200 мм с утеплением и кладкой доборного блока;
- Стропильная конструкция из сухой строганной доски
- Доска хв.пород сухая строганная (обрешетка сверху) - 25х150х6000 мм
- Металлочерепица классик 0,5 Satin RAL 8017 шоколад
- Утеплитель Rockwool Лайт Баттс Скандик 800х600х50 мм
- Гидро-ветрозащитная мембрана;
- Окна REHAU с 2-х камерным стеклопакетом и ламинацией (3 стекла) - профиль - 60 мм
- Двухконтурное использование черного цвета;
- Усиленное армирование 1,5 мм;
- Все расходные и сопутствующие материалы необходимые для установки;
- Закладные под коммуникации - электричество, водоснабжение и канализация;
- Внешние несущие стены из газобетонных блоков плотностью D500 – 400 мм;
Что еще входит в стоимость:
Отправьте свои контакты и мы расчитаем вам смету
Скорее всего вам подойдут следующие проекты домов:
Проект двухэтажного дома Дом id-113393
Семья с двумя детьми
Дом подходит для:
Дом подходит для:
Проект двухэтажного дома Дом id-111643
Семья с двумя детьми
Дом подходит для:
Дом подходит для:
Проект двухэтажного дома Дом id-124280
Для большой семьи
Дом подходит для:
Дом подходит для:


















