Проект одноэтажного дома Сенатор
Дом подходит для:
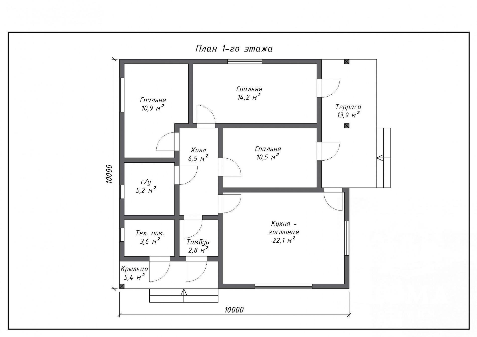
Площадь
106 м 2
Размер дома:
10x10
Этажей:
1
Спален:
3
Санузел:
1
Гараж:
Нет
Баня:
Нет
Терраса:
Да
Панорамные окна:
Нет
Мастер-спальня:
Нет
Планировка
Фасады
О проекте
Стильный дом площадью 106 м² с жилыми 87 м² создан для семьи с двумя детьми. Каркасные стены дарят тепло и тишину, а мягкая кровля завершает образ современного жилья. Пространство организовано с заботой о практичности, создавая уютные и светлые интерьеры. Здесь все продумано для гармоничной жизни.Характеристики
- Общая площадь: 106 м2
- Жилая площадь: 87 м2
- Количество этажей: 1
- Гараж: нет
- Площадь кровли: 111 м2
- Форма: Квадратные дома
- Тип кровли: Дома с четырехскатной крышей (вальмовой)
- Пристрой: Дома с террасой
- Отделка: Без отделки
- Размер: 10x10
- Фундамент: Дома со свайным фундаментом
Материалы и перечень работ
- Винтовые сваи длиной 2500 мм. под ключ
- Пол: SIP панели 174 мм (OSB-3 12 мм)
- Стены: SIP панели 174 мм (OSB-3 12 мм)
- Перегородки: Каркасная система
- Чердачное перекрытие: Каркасная система
- Кровля: Металлочерепица
- В стоимость не входит
- В стоимость не входит
- В стоимость не входит
- Винтовые сваи длиной 2500 мм. под ключ
- Пол: SIP панели 174 мм (OSB-3 12 мм)
- Стены: SIP панели 174 мм (OSB-3 12 мм)
- Перегородки: Каркасная система
- Чердачное перекрытие: Каркасная система
- Кровля: Металлочерепица
- В стоимость не входит
- В стоимость не входит
- В стоимость не входит
Что еще входит в стоимость:
Отправьте свои контакты и мы расчитаем вам смету
Скорее всего вам подойдут следующие проекты домов:
Дом подходит для:
Дом подходит для:
Проект одноэтажного дома Каркасный дом серии Сакура Тай базовая комплектация ПМЖ
Для большой семьи
Дом подходит для:
Дом подходит для:











