Проект одноэтажного дома Шамони
Дом подходит для:
Площадь
76 м 2
Размер дома:
7,3x10,4
Этажей:
1
Спален:
2
Санузел:
1
Гараж:
Нет
Баня:
Нет
Терраса:
Да
Панорамные окна:
Нет
Мастер-спальня:
Нет
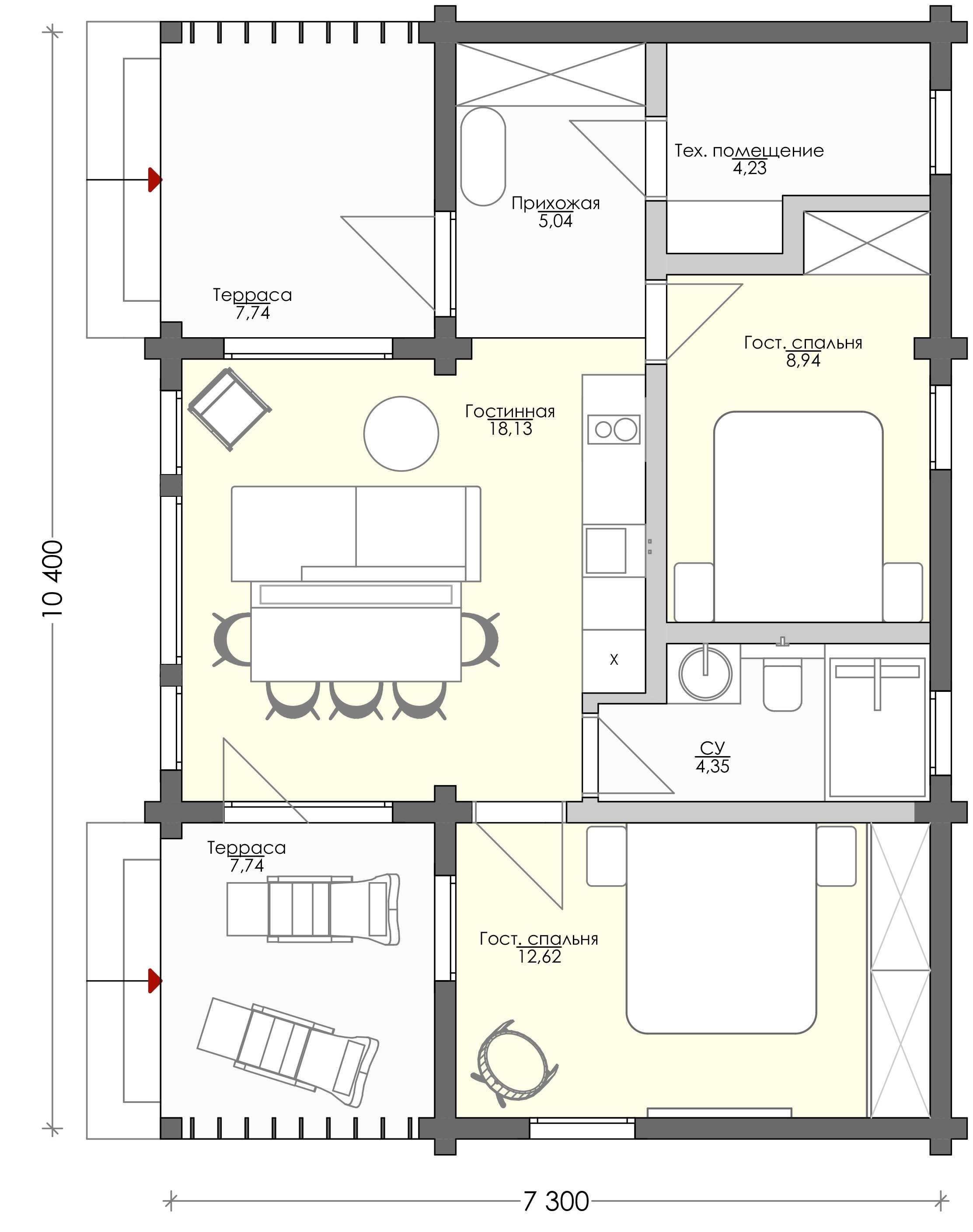
Планировка
Фасады
О проекте
Дом Шамони площадью 76 м² с жилыми 35 м² создан для комфортного проживания. Брус в стенах обеспечивает тепло, а натуральная черепица на крыше добавляет надежности. Две спальни и санузел делают его удобным для небольшой семьи. Свайный фундамент подчеркивает универсальность этого проекта.Характеристики
- Общая площадь: 76 м2
- Жилая площадь: 35 м2
- Количество этажей: 1
- Гараж: нет
- Площадь кровли: 81 м2
- Форма: Квадратные дома
- Тип кровли: Дома с двускатной крышей
- Пристрой: Дома с террасой
- Отделка: Без отделки
- Отделка фасада: Дома с комбинированной отделкой
- Фундамент: Дома со свайным фундаментом
Материалы и перечень работ
- Привязка и разметка фундамента на участке
- Железобетонные забивные сваи сечением 20x20 см длиной 3 метра из бетона высшего качества
- Устройство обвязочного бруса на фундамент
- Гидроизоляция фундамента
- Домокомплект из клееного бруса 200x185 мм.
- Сборка домокомплекта на герметик
- Все расходные материалы для сборки
- Антисептирование бруса, обработка торцов воском
- Устройство межэтажных балок
- Устройство стропильной системы
- Утепление кровли 20 см, качественные паро- и гидромембраны
- Капитальная кровля (утепление 20 см, пароизоляция, гидроизоляция, обрешетка и контробрешетка) с покрытием натуральной черепицей BRAAS
- Деревянные окна и входные двери (евробрус трехламельный 78, стеклопакет трехслойный 40 мм) с подготовкой проемов и монтажом
- В стоимость не входит
- В стоимость не входит
- Привязка и разметка фундамента на участке
- Железобетонные забивные сваи сечением 20x20 см длиной 3 метра из бетона высшего качества
- Устройство обвязочного бруса на фундамент
- Гидроизоляция фундамента
- Домокомплект из клееного бруса 200x185 мм.
- Сборка домокомплекта на герметик
- Все расходные материалы для сборки
- Антисептирование бруса, обработка торцов воском
- Устройство межэтажных балок
- Устройство стропильной системы
- Утепление кровли 20 см, качественные паро- и гидромембраны
- Капитальная кровля (утепление 20 см, пароизоляция, гидроизоляция, обрешетка и контробрешетка) с покрытием натуральной черепицей BRAAS
- Деревянные окна и входные двери (евробрус трехламельный 78, стеклопакет трехслойный 40 мм) с подготовкой проемов и монтажом
- В стоимость не входит
- В стоимость не входит
Что еще входит в стоимость:
Отправьте свои контакты и мы расчитаем вам смету
Скорее всего вам подойдут следующие проекты домов:
Дом подходит для:
Проект одноэтажного дома Мегра
Семья с двумя детьми
Дом подходит для:
Дом подходит для:
Проект одноэтажного дома БД-5
Семья с одним ребенком
Дом подходит для:
Дом подходит для:












