Проект двухэтажного дома ШИ
Площадь
185 м 2
Размер дома:
11x10
Этажей:
2
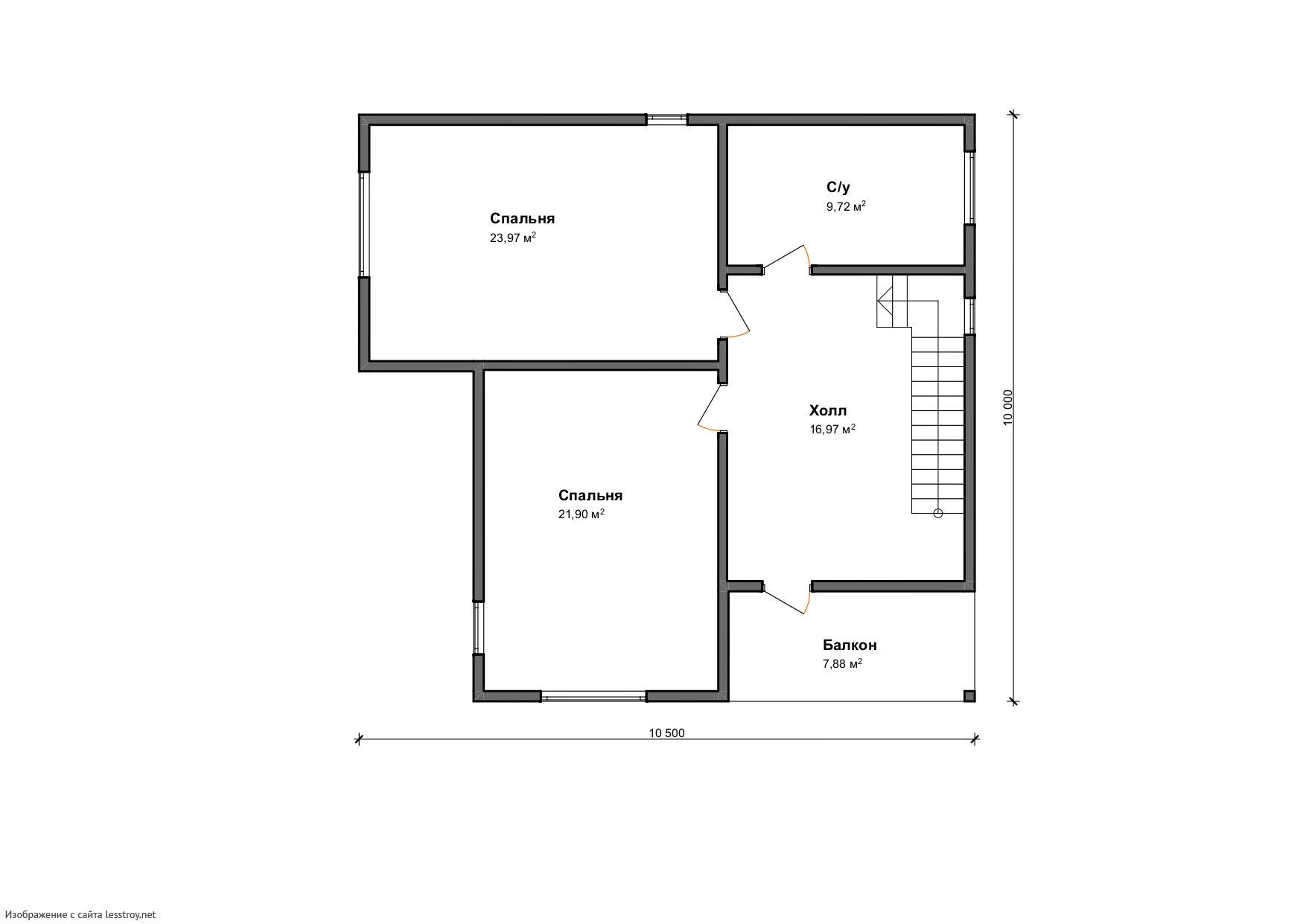
Спален:
3
Санузел:
0
Гараж:
Нет
Баня:
Нет
Терраса:
Нет
Панорамные окна:
Нет
Мастер-спальня:
Нет
О проекте
Дом выглядит изысканно, но при этом в нём приятно жить.Дом из керамоблока площадью 185 м² — уютное и надежное жилье. Два этажа с тремя спальнями подойдут для семьи. Прочные стены из керамоблока создают здоровый микроклимат, а большие окна наполняют дом светом. Терраса расширяет жилое пространство.Характеристики
- Общая площадь: 185 м2
- Количество этажей: 2
- Стиль, разновидность: Дома в стиле Кантри
- Форма: Квадратные дома
- Тип кровли: Дома с четырехскатной крышей (вальмовой)
- Отделка: Без отделки
- Размер: 11x10
Отправьте свои контакты и мы расчитаем вам смету
Скорее всего вам подойдут следующие проекты домов:
Дом подходит для:
Проект двухэтажного дома X1B
Семья с двумя детьми
Дом подходит для:
Дом подходит для:




