Проект одноэтажного дома Сиена
Площадь
113 м 2
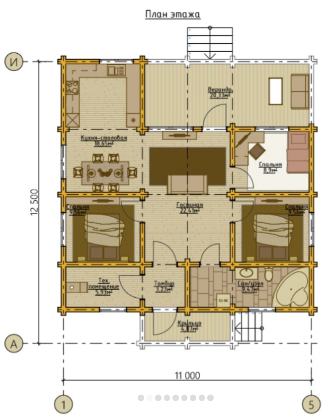
Размер дома:
Этажей:
1
Спален:
3
Санузел:
0
Гараж:
Нет
Баня:
Нет
Терраса:
Нет
Панорамные окна:
Нет
Мастер-спальня:
Нет
О проекте
Пространство организовано с учетом потребностей современной семьи.Площадь 120 м² — подходящий вариант для молодых семей. Стены из бревна хорошо держат тепло и защищают от шума. Двухэтажная эргономичная планировка обеспечивает комфортную навигацию внутри дома. Архитектура выполнена в стиле дома в классическом стиле.Характеристики
- Общая площадь: 113 м2
- Количество этажей: 1
- Стиль, разновидность: Дома в стиле Шале
- Форма: Прямоугольные дома
- Тип кровли: Дома с многощипцовой крышей
- Отделка: Без отделки
Отправьте свои контакты и мы расчитаем вам смету
Скорее всего вам подойдут следующие проекты домов:
Дом подходит для:
Дом подходит для:
Дом подходит для:







