Проект двухэтажного дома Сиэтл 310
Площадь
310 м 2
Размер дома:
16x12
Этажей:
2
Спален:
4
Санузел:
0
Гараж:
Нет
Баня:
Нет
Терраса:
Нет
Панорамные окна:
Нет
Мастер-спальня:
Нет
О проекте
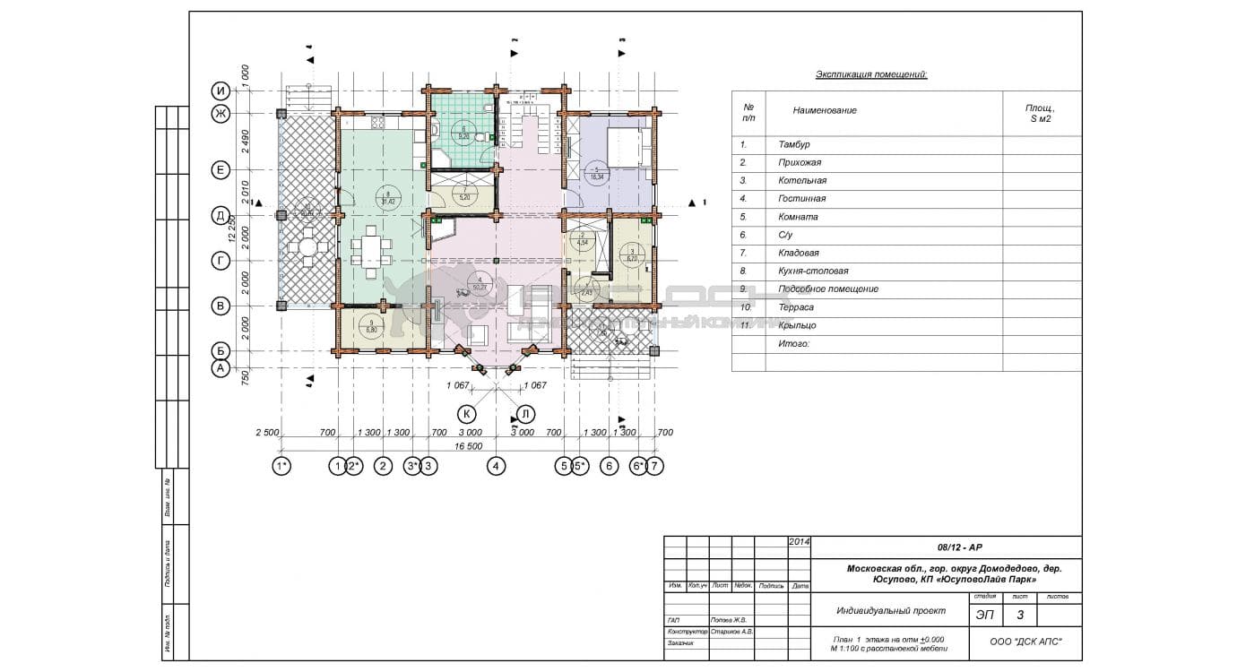
Роскошный и статусный, этот дом из клееного бруса (310 м²) — воплощение современного комфорта. Четыре спальни, два этажа и битумная черепица подчёркивают его респектабельный облик.Характеристики
- Общая площадь: 310 м2
- Количество этажей: 2
- Стиль, разновидность: Финские дома
- Форма: Квадратные дома
- Тип кровли: Дома с многощипцовой крышей
- Отделка: Без отделки
- Размер: 16x12
Отправьте свои контакты и мы расчитаем вам смету
Скорее всего вам подойдут следующие проекты домов:
Дом подходит для:
Дом подходит для:
Дом подходит для:












