Проект двухэтажного дома SIP 12
Площадь
98 м 2
Размер дома:
Этажей:
2
Спален:
3
Санузел:
0
Гараж:
Нет
Баня:
Нет
Терраса:
Нет
Панорамные окна:
Нет
Мастер-спальня:
Нет
О проекте
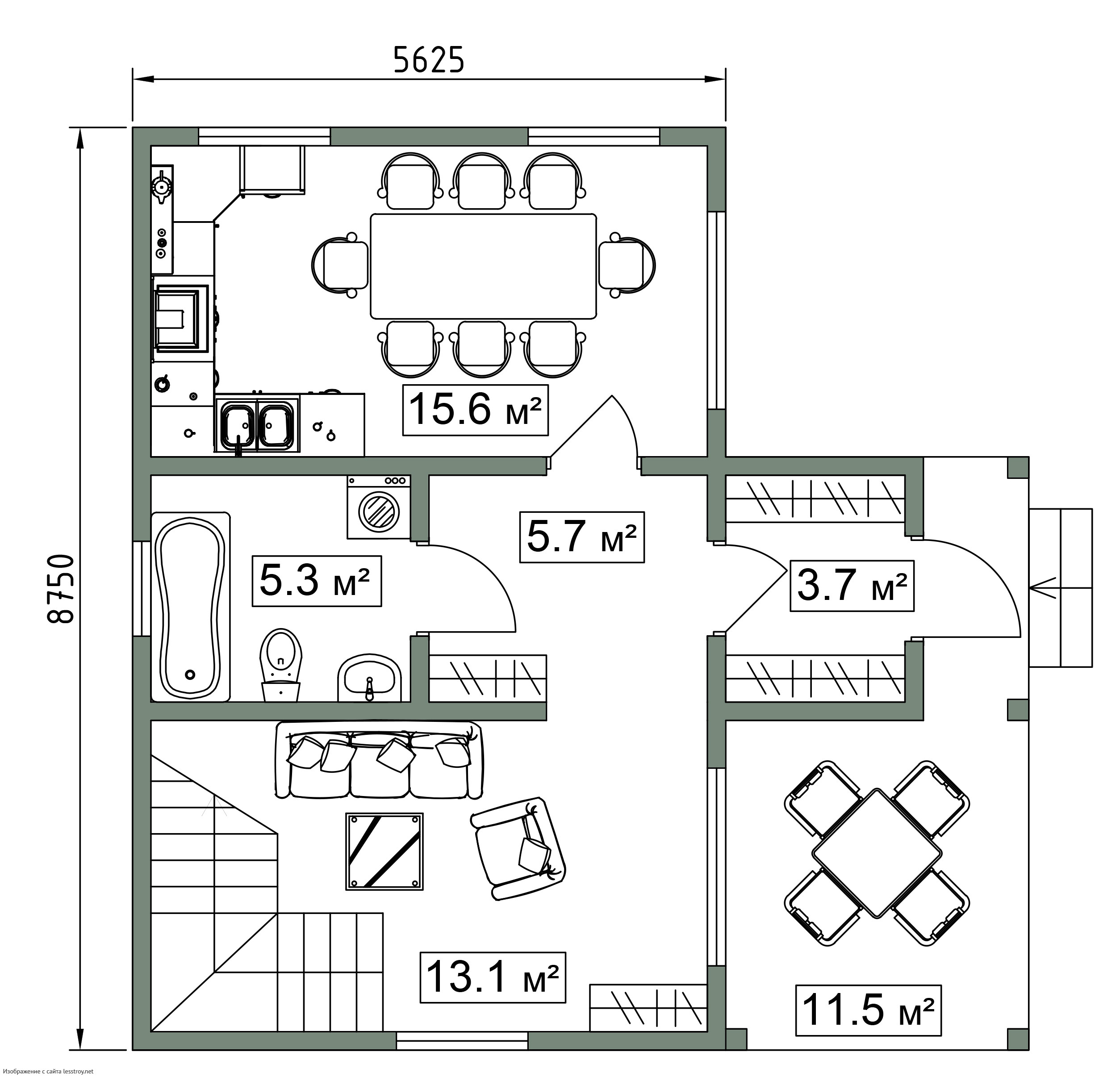
Пространство, где даже тишина звучит по-особенному. 98 м² — идеальная отправная точка для домашнего уюта. Крыша из металлочерепица подчёркивает современный облик дома. Проект включает 3 спальни — удобно для семьи. Конструкция из Каркас обеспечивает прочность и долговечность.Характеристики
- Общая площадь: 98 м2
- Количество этажей: 2
- Стиль, разновидность: Дома в ином стиле
- Форма: Прямоугольные дома
- Тип кровли: Дома с многощипцовой крышей
- Отделка: Без отделки
Отправьте свои контакты и мы расчитаем вам смету
Скорее всего вам подойдут следующие проекты домов:
Дом подходит для:
Дом подходит для:
Дом подходит для:









