Проект двухэтажного дома SIP 15
Площадь
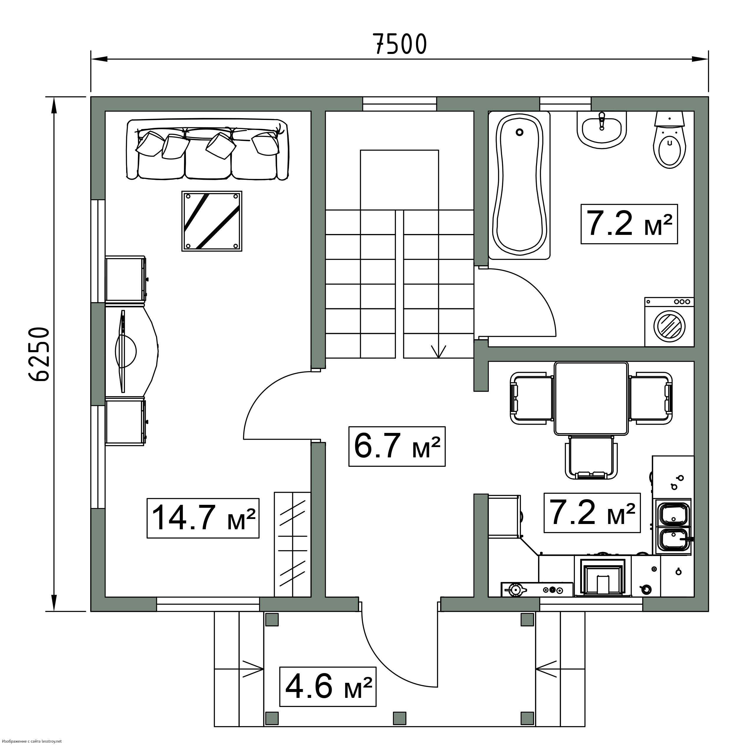
80 м 2
Размер дома:
Этажей:
2
Спален:
2
Санузел:
0
Гараж:
Нет
Баня:
Нет
Терраса:
Нет
Панорамные окна:
Нет
Мастер-спальня:
Нет
О проекте
Проект, где домашний спортзал не требует дополнительного оборудования. С площадью 80 м² легко реализовать уникальный интерьер. металлочерепица придаёт дому выразительность и надёжность. Наличие 2 спальни удовлетворит запросы семьи с детьми. Конструкция из Каркас обеспечивает прочность и долговечность.Характеристики
- Общая площадь: 80 м2
- Количество этажей: 2
- Стиль, разновидность: Дома в ином стиле
- Форма: Прямоугольные дома
- Тип кровли: Дома с многощипцовой крышей
- Отделка: Без отделки
Отправьте свои контакты и мы расчитаем вам смету
Скорее всего вам подойдут следующие проекты домов:
Проект двухэтажного дома Проект каркасного дома 10х9 - СВЯТОСЛАВ
Семья с двумя детьми
Дом подходит для:
Дом подходит для:
Дом подходит для:
Дом подходит для:










