Проект двухэтажного дома SIP 18
Площадь
127 м 2
Размер дома:
Этажей:
2
Спален:
3
Санузел:
0
Гараж:
Нет
Баня:
Нет
Терраса:
Нет
Панорамные окна:
Нет
Мастер-спальня:
Нет
О проекте
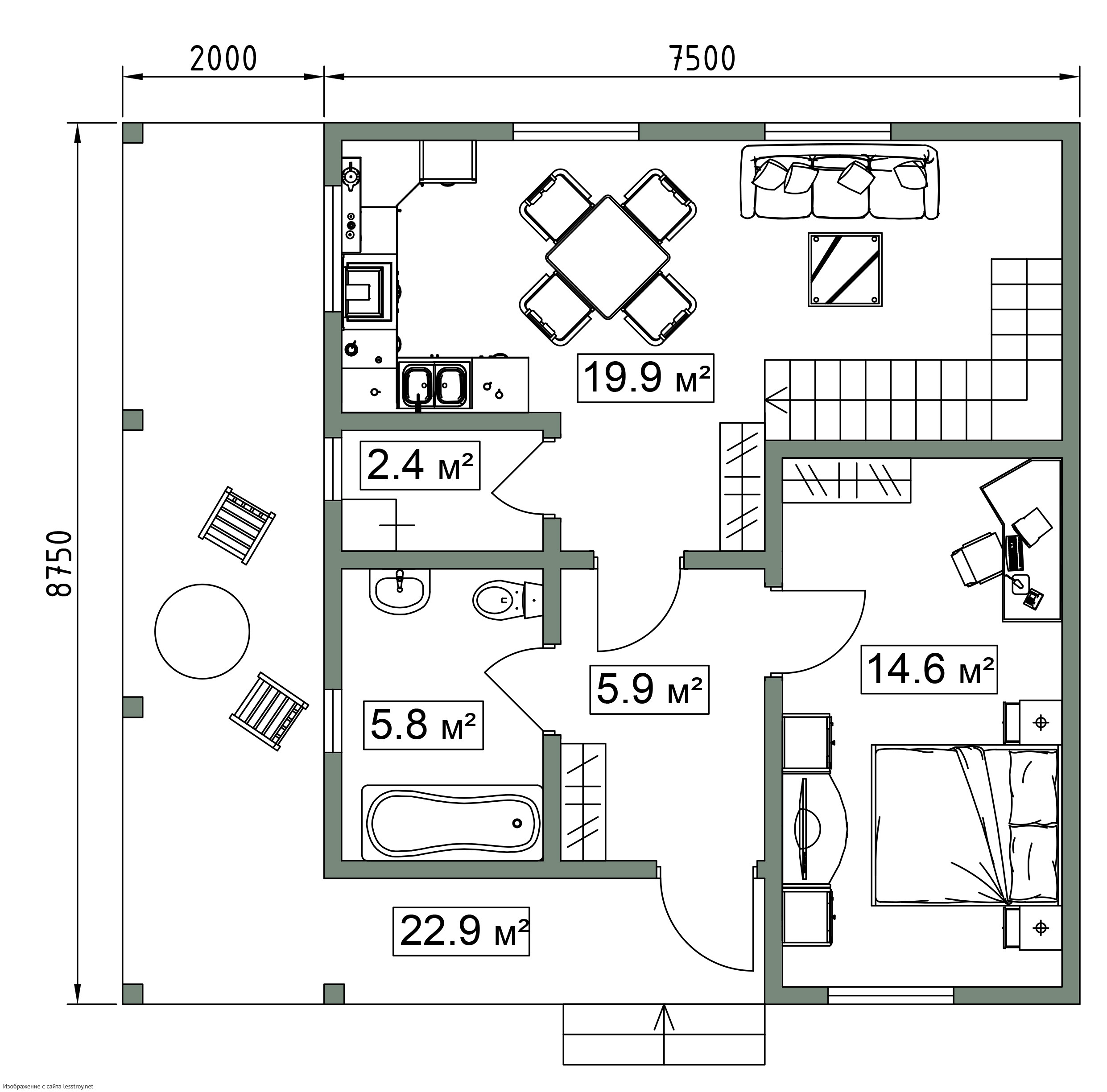
Здесь стены помнят первый смех новорожденного.Площадь 127 м² — это свобода и контроль одновременно. Архитектура выполнена в стиле дома в классическом стиле. В качестве кровли использована металлочерепица — материал, проверенный временем. Проект включает 3 спальни — удобно для семьи.Характеристики
- Общая площадь: 127 м2
- Количество этажей: 2
- Стиль, разновидность: Дома в ином стиле
- Форма: Прямоугольные дома
- Тип кровли: Дома с двускатной крышей
- Отделка: Без отделки
Отправьте свои контакты и мы расчитаем вам смету
Скорее всего вам подойдут следующие проекты домов:
Дом подходит для:
Дом подходит для:
Дом подходит для:










