Проект двухэтажного дома Сканди 208
Дом подходит для:
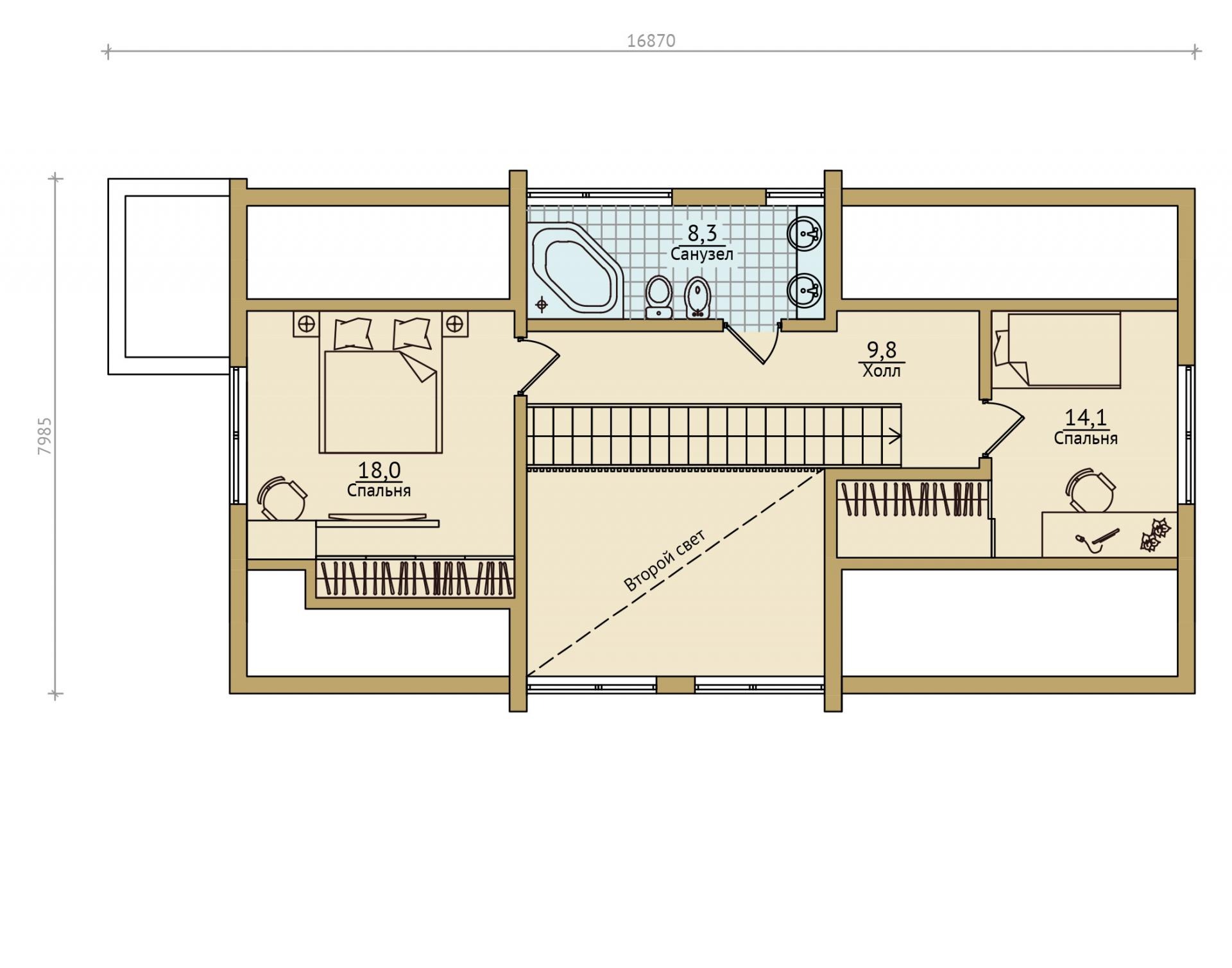
Площадь
208 м 2
Размер дома:
16,8x12,3
Этажей:
2
Спален:
3
Санузел:
2
Гараж:
Нет
Баня:
Нет
Терраса:
Да
Панорамные окна:
Нет
Мастер-спальня:
Нет
Планировка
Фасады
О проекте
Дом Сканди 208 площадью 208 м² с жилыми 156 м² — воплощение современности и комфорта. Каркасные стены наполняют интерьер теплом, а металлочерепица на крыше обеспечивает защиту. Три спальни и два санузла создают удобство для семьи. Плитный фундамент добавляет устойчивости этому жилью.Характеристики
- Общая площадь: 208 м2
- Жилая площадь: 156 м2
- Количество этажей: 2
- Гараж: нет
- Площадь кровли: 212 м2
- Стиль, разновидность: Дома в стиле Барнхаус
- Форма: Квадратные дома
- Тип кровли: Дома с двускатной крышей
- Пристрой: Дома с террасой
- Отделка: Без отделки
- Отделка фасада: Дома с отделкой вагонкой
- Фундамент: Дома с плитным фундаментом
- Класс дома: Дома класса Преимум
Материалы и перечень работ
- Монолитная ж/б плита 200мм, бетон B20, арматура класс А3, ⌀12мм двойное армирование ячейка 200мм, закладные под ввод/вывод коммуникаций (вода, канализация по точкам, резерв)
- Комплект каркасов наружных и внутренних стен заводского изготовления, стропильная система (доска сухая строганая калиброванная, с противопожарной фаской ( 45х195мм, 45х145мм, 45х95мм)
- Комплект несущих силовых элементов заводского изготовления (балки межэтажного перекрытия LVL-брус, балки и столбы из клееного бруса и/или LVL-бруса, фермы на металлозубчатых пластинах MITEK
- Утепление стен 225мм: базальтовые плиты UMATEX Termo (Paroc eXtra565) 200мм с перекрытием "мостиков холода"
- Ветрозащита и звукоизоляция плитой МДВП
- Утепление кровли 300мм: UMATEX Termo (Paroc eXtra565)
- Кровельное покрытие МЧ PE GrandLine Classic Satin 0,5 мм, устройство обрешетки, контробрешетки "
- Комплект водосточной системы Doke (Германия)
- Комплект трубчатых снегозадержателей Grandline
- Монтаж подкровельной диффузионной мембраны Delta Vent N
- Входные утепленные двери KASKI (Финляндия)
- Окна и балконные двери - профиль Rehau 80 INTELIO шириной 80мм, двухкамерный стеклопакет 4LGM1-16Ar-4M1-14-4M1, с низкоэмиссионным стеклом. Фурнитура Roto (Германия)
- В стоимость не входит
- Внешняя отделка: облицовка фасада имитацией бруса, отделка углов, откосов, наличники окон и дверей, настил террас и балконов, устройство ограждений. Устройство карнизов, подшивка кровельных свесов. Покраска всех элементов Tikkurila в/д фасадная Pika-Teho
- Монолитная ж/б плита 200мм, бетон B20, арматура класс А3, ⌀12мм двойное армирование ячейка 200мм, закладные под ввод/вывод коммуникаций (вода, канализация по точкам, резерв)
- Комплект каркасов наружных и внутренних стен заводского изготовления, стропильная система (доска сухая строганая калиброванная, с противопожарной фаской ( 45х195мм, 45х145мм, 45х95мм)
- Комплект несущих силовых элементов заводского изготовления (балки межэтажного перекрытия LVL-брус, балки и столбы из клееного бруса и/или LVL-бруса, фермы на металлозубчатых пластинах MITEK
- Утепление стен 225мм: базальтовые плиты UMATEX Termo (Paroc eXtra565) 200мм с перекрытием "мостиков холода"
- Ветрозащита и звукоизоляция плитой МДВП
- Утепление кровли 300мм: UMATEX Termo (Paroc eXtra565)
- Кровельное покрытие МЧ PE GrandLine Classic Satin 0,5 мм, устройство обрешетки, контробрешетки "
- Комплект водосточной системы Doke (Германия)
- Комплект трубчатых снегозадержателей Grandline
- Монтаж подкровельной диффузионной мембраны Delta Vent N
- Входные утепленные двери KASKI (Финляндия)
- Окна и балконные двери - профиль Rehau 80 INTELIO шириной 80мм, двухкамерный стеклопакет 4LGM1-16Ar-4M1-14-4M1, с низкоэмиссионным стеклом. Фурнитура Roto (Германия)
- В стоимость не входит
- Внешняя отделка: облицовка фасада имитацией бруса, отделка углов, откосов, наличники окон и дверей, настил террас и балконов, устройство ограждений. Устройство карнизов, подшивка кровельных свесов. Покраска всех элементов Tikkurila в/д фасадная Pika-Teho
Что еще входит в стоимость:
Отправьте свои контакты и мы расчитаем вам смету
Скорее всего вам подойдут следующие проекты домов:
Дом подходит для:
Дом подходит для:
Дом подходит для:












