Проект двухэтажного дома Скайлер 267
Дом подходит для:
Площадь
267 м 2
Размер дома:
Скайлер 267
Этажей:
2
Спален:
4
Санузел:
3
Гараж:
Да
Баня:
Нет
Терраса:
Нет
Панорамные окна:
Нет
Мастер-спальня:
Нет
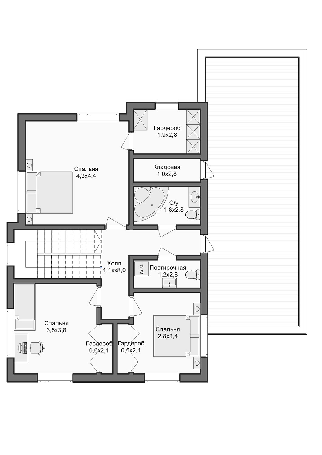
Планировка
Фасады
О проекте
Этот проект площадью 267 м² с жилыми 186 м² сочетает в себе роскошь и практичность. Каркасные стены дарят тепло и защищенность, а просторные комнаты наполнены светом. Гараж на 35 м² добавляет удобства, а продуманная планировка делает жизнь комфортной. Здесь гармонично сочетаются современные технологии и домашний уют.Характеристики
- Общая площадь: 267 м2
- Жилая площадь: 186 м2
- Количество этажей: 2
- Гараж: 35
- Высота дома: 6.8 м
- Площадь кровли: 267 м2
- Отделка: Без отделки
- Фундамент: Дома со свайным фундаментом
Материалы и перечень работ
- Железобетонные забивные сваи
- Стены, стропильная система - калиброванная сухая строганная доска камерной сушки, шаг стоек и стропил 400 мм, жёсткость каркаса обеспечивается плитами OSВ-3
- Все деревянные конструкции обрабатываются огнебиозащитой
- Ветрозащита - паропроницаемая мембрана
- Утепление - минераловатный утеплитель, толщина 200-300 мм
- Кровля - гибкая черепица / металлочерепица / клик-фальц
- Снегостопоры, водосточная система
- Кровельные вентиляционные проходы для кухни, котельной и санузлов
- Подшив свесов кровли - соффиты с перфорацией / деревянная отделка
- Окна - 5-камерный ПВХ профиль, 2-камерный стекло-пакет (3 стекла) с тонировкой, москитные сетки
- Металлическая утепленная входная дверь с термо-разрывом
- В стоимость не входит
- Внешняя отделка - дерево / металлический сайдинг
- Цокольные и оконные отливы - металл, полиэстер
- Крыльцо и терраса с лестницами, полы и поручень ограждения из лиственницы
- Внешняя светодиодная подсветка дома
- Железобетонные забивные сваи
- Стены, стропильная система - калиброванная сухая строганная доска камерной сушки, шаг стоек и стропил 400 мм, жёсткость каркаса обеспечивается плитами OSВ-3
- Все деревянные конструкции обрабатываются огнебиозащитой
- Ветрозащита - паропроницаемая мембрана
- Утепление - минераловатный утеплитель, толщина 200-300 мм
- Кровля - гибкая черепица / металлочерепица / клик-фальц
- Снегостопоры, водосточная система
- Кровельные вентиляционные проходы для кухни, котельной и санузлов
- Подшив свесов кровли - соффиты с перфорацией / деревянная отделка
- Окна - 5-камерный ПВХ профиль, 2-камерный стекло-пакет (3 стекла) с тонировкой, москитные сетки
- Металлическая утепленная входная дверь с термо-разрывом
- В стоимость не входит
- Внешняя отделка - дерево / металлический сайдинг
- Цокольные и оконные отливы - металл, полиэстер
- Крыльцо и терраса с лестницами, полы и поручень ограждения из лиственницы
- Внешняя светодиодная подсветка дома
Что еще входит в стоимость:
Отправьте свои контакты и мы расчитаем вам смету
Скорее всего вам подойдут следующие проекты домов:
Дом подходит для:
Дом подходит для:









