Проект одноэтажного дома Сказочный мир
Дом подходит для:
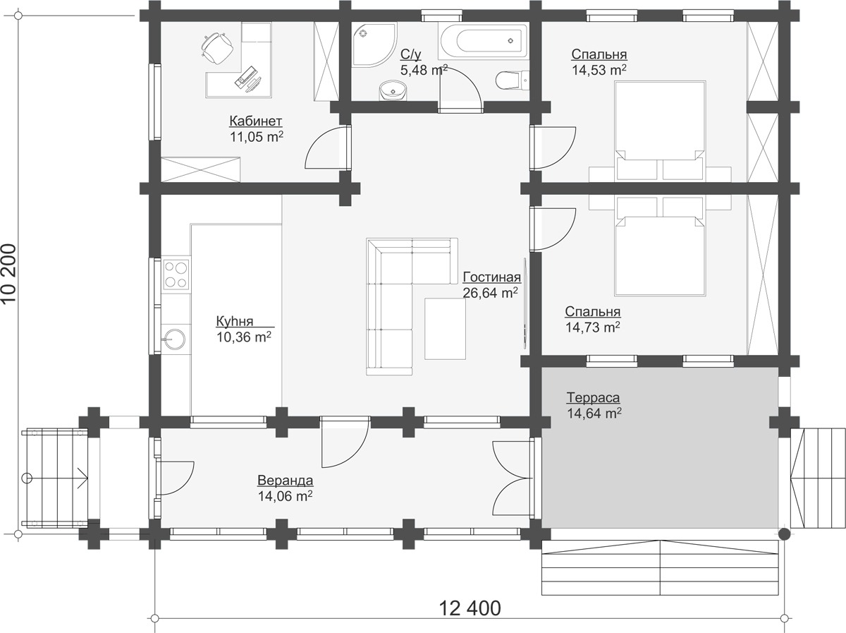
Площадь
111 м 2
Размер дома:
10х12
Этажей:
1
Спален:
2
Санузел:
1
Гараж:
Нет
Баня:
Нет
Терраса:
Да
Панорамные окна:
Нет
Мастер-спальня:
Нет
Планировка
Характеристики
- Общая площадь: 111.49 м2
- Жилая площадь: 87 м2
- Количество этажей: 1
- Гараж: нет
- Площадь кровли: 116 м2
- Форма: Квадратные дома
- Тип кровли: Дома с четырехскатной крышей (вальмовой)
- Пристрой: Дома с верандой
- Отделка: Без отделки
- Фундамент: Дома со свайным фундаментом
Материалы и перечень работ
- Геодезические работы: разбивка осей, нивелировка
- Сваи СВСН-108 (толщина стенки трубы-4мм/диаметр лопасти-300мм/длина сваи-2500мм), сталь для несущих конструкций, покрытие на основе акриловых смол, срок службы 80 лет
- Оголовок 200х200мм
- Монтаж сваи полумеханизированным способом с бетонированием полости пескобетоном высшего качества М300, приварка оголовка, покраска сварных швов
- Монтаж обвязки из профилированной трубы 60х30х2
- Стеновой комплект: отборный хвойный лес 1 сорта (сосна-ель) естественной влажности (г. Киров)
- 100% заводское изготовление стенового комплекта с зарезанием монтажных чашек по проекту
- Утепление чашки – джут (межвенцовый утеплитель)
- Монтаж стен из бревна на деревянные нагеля
- Монтаж перекрытия пола 1-го и 2-го этажей из доски 50х200мм, шаг балок не более 580 мм
- Стропильная конструкция из доски 50х200мм
- Установка стропильной конструкции на плавающих опорах, скользящая система, шаг стропил не более 580 мм
- Обрешётка из доски 25х150мм
- Покрытие-гидроизоляционная пленка или рубероид
- Все расходные и сопутствующие материалы необходимые для монтажа кровли
- В стиомость не входит
- В стиомость не входит
- В стиомость не входит
- Геодезические работы: разбивка осей, нивелировка
- Сваи СВСН-108 (толщина стенки трубы-4мм/диаметр лопасти-300мм/длина сваи-2500мм), сталь для несущих конструкций, покрытие на основе акриловых смол, срок службы 80 лет
- Оголовок 200х200мм
- Монтаж сваи полумеханизированным способом с бетонированием полости пескобетоном высшего качества М300, приварка оголовка, покраска сварных швов
- Монтаж обвязки из профилированной трубы 60х30х2
- Стеновой комплект: отборный хвойный лес 1 сорта (сосна-ель) естественной влажности (г. Киров)
- 100% заводское изготовление стенового комплекта с зарезанием монтажных чашек по проекту
- Утепление чашки – джут (межвенцовый утеплитель)
- Монтаж стен из бревна на деревянные нагеля
- Монтаж перекрытия пола 1-го и 2-го этажей из доски 50х200мм, шаг балок не более 580 мм
- Стропильная конструкция из доски 50х200мм
- Установка стропильной конструкции на плавающих опорах, скользящая система, шаг стропил не более 580 мм
- Обрешётка из доски 25х150мм
- Покрытие-гидроизоляционная пленка или рубероид
- Все расходные и сопутствующие материалы необходимые для монтажа кровли
- В стиомость не входит
- В стиомость не входит
- В стиомость не входит
Что еще входит в стоимость:
Отправьте свои контакты и мы расчитаем вам смету
Скорее всего вам подойдут следующие проекты домов:
Дом подходит для:
Дом подходит для:
Дом подходит для:




