Проект одноэтажного дома SKN-Барн Лорд
Дом подходит для:
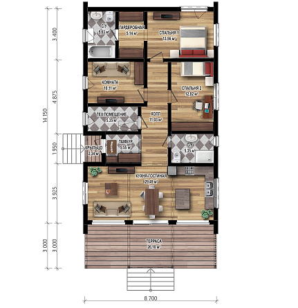
Площадь
150 м 2
Размер дома:
14,1х8,7
Этажей:
1
Спален:
2
Санузел:
2
Гараж:
Нет
Баня:
Нет
Терраса:
Нет
Панорамные окна:
Нет
Мастер-спальня:
Нет
Планировка
Фасады
О проекте
Дом площадью 150 м² — это легкость архитектуры, сочетающаяся с теплом интерьера. Жилая площадь 123 м² идеально подходит для семьи с одним ребенком, предлагая уют и функциональность. Каркасные стены добавляют дому современности и надежности, создавая атмосферу комфорта. Здесь каждый уголок продуман для жизни в спокойствии.Характеристики
- Общая площадь: 150 м2
- Жилая площадь: 123 м2
- Количество этажей: 1
- Гараж: нет
- Площадь кровли: 155 м2
- Отделка: Без отделки
- Фундамент: Дома со свайным фундаментом
Материалы и перечень работ
- Сваи забивные железобетонные 150х150х3000, усиленные армированием конструкции; оголовок металл
- Каркас внутренних стен:Стойки, диагональные усиления стен: строганная доска камерной сушки 45х95 мм/45х145 мм
- Пароизоляция: Изоспан В с двух сторон
- Теплоизоляция: Плитный базальтовый утеплитель Rockwool/Технониколь 100мм-150мм (Утеплитель толщинами 100мм и 50мм)
- Внутренние стены и перегородки: Гипсокартонный лист (ГКЛ) 9,5 мм в 2 слоя с перекрытием швов (без шпаклевки швов) шаговая обрешетка 200мм из имитации бруса С/ доска строганная 20х100
- С/у и техпомещение: Гипсокартонный лист влагостойкий (ГКЛВ) 9,5 мм в 2 слоя с перекрытием швов (без шпаклевки швов)
- Кровельное покрытие: Металлочерепица GRAND LINE CLASSIC. Покрытие Полиэстер (PE). Толщина стали 0,45 мм, цвет на выбор 8017(шоколад), RR32 (темно-коричневый), 7024 (темно-серый), 6005 (зеленый), 3005 (вишня), 5005 (синий)
- Гидроизоляция кровли: Изоспан АМ
- Стропила: доска сухая 18-22% влажности 50х200
- Контробрешётка: брусок сухой 18-22% влажности 50х50
- Обрешётка: доска сухая 18-22% влажности 25х100
- Окна ПВХ: Профиль первого класса 70мм Veka, 3 стекла, с энергосбережением, цвет белый. Водоотливы из белой листовой стали. Москитные сетки, подоконники пластик
- Двери: дверь входная металлическая с терморазрывом. Производство Россия. Цвет:венге/лиственница
- Не предусмотрена
- Каркас несущих стен: Стойки, диагональные усиления стен: строганная доска камерной сушки 45х145 мм, горизонтальная обрешетка брусок сухой строганный 50х50/45х45
- Вертикальные направляющие для вент. зазора: сухой строганный брусок 30х40 мм
- Пароизоляция: Изоспан В с проклейкой швов скотчем Delta Multiban
- Гидроизоляция: Изоспан
- Теплоизоляция: Плитный базальтовый утеплитель Rockwool/Технониколь 200мм( горизонтальное утепление плотность 40-45, внутреннее утепление 30-40)
- Сваи забивные железобетонные 150х150х3000, усиленные армированием конструкции; оголовок металл
- Каркас внутренних стен:Стойки, диагональные усиления стен: строганная доска камерной сушки 45х95 мм/45х145 мм
- Пароизоляция: Изоспан В с двух сторон
- Теплоизоляция: Плитный базальтовый утеплитель Rockwool/Технониколь 100мм-150мм (Утеплитель толщинами 100мм и 50мм)
- Внутренние стены и перегородки: Гипсокартонный лист (ГКЛ) 9,5 мм в 2 слоя с перекрытием швов (без шпаклевки швов) шаговая обрешетка 200мм из имитации бруса С/ доска строганная 20х100
- С/у и техпомещение: Гипсокартонный лист влагостойкий (ГКЛВ) 9,5 мм в 2 слоя с перекрытием швов (без шпаклевки швов)
- Кровельное покрытие: Металлочерепица GRAND LINE CLASSIC. Покрытие Полиэстер (PE). Толщина стали 0,45 мм, цвет на выбор 8017(шоколад), RR32 (темно-коричневый), 7024 (темно-серый), 6005 (зеленый), 3005 (вишня), 5005 (синий)
- Гидроизоляция кровли: Изоспан АМ
- Стропила: доска сухая 18-22% влажности 50х200
- Контробрешётка: брусок сухой 18-22% влажности 50х50
- Обрешётка: доска сухая 18-22% влажности 25х100
- Окна ПВХ: Профиль первого класса 70мм Veka, 3 стекла, с энергосбережением, цвет белый. Водоотливы из белой листовой стали. Москитные сетки, подоконники пластик
- Двери: дверь входная металлическая с терморазрывом. Производство Россия. Цвет:венге/лиственница
- Не предусмотрена
- Каркас несущих стен: Стойки, диагональные усиления стен: строганная доска камерной сушки 45х145 мм, горизонтальная обрешетка брусок сухой строганный 50х50/45х45
- Вертикальные направляющие для вент. зазора: сухой строганный брусок 30х40 мм
- Пароизоляция: Изоспан В с проклейкой швов скотчем Delta Multiban
- Гидроизоляция: Изоспан
- Теплоизоляция: Плитный базальтовый утеплитель Rockwool/Технониколь 200мм( горизонтальное утепление плотность 40-45, внутреннее утепление 30-40)
Что еще входит в стоимость:
Отправьте свои контакты и мы расчитаем вам смету
Скорее всего вам подойдут следующие проекты домов:
Дом подходит для:
Дом подходит для:
Дом подходит для:














