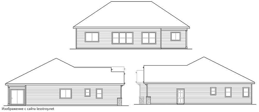
Проект одноэтажного дома Снегири Фахферк
Площадь
200 м 2
Размер дома:
16x12
Этажей:
1
Спален:
4
Санузел:
0
Гараж:
Нет
Баня:
Нет
Терраса:
Нет
Панорамные окна:
Нет
Мастер-спальня:
Нет
О проекте
Пространство выглядит как дизайнерский шоурум, но живет как семейный альбом. 300 м² — это идеальное сочетание функциональности и уюта. Трёхэтажная просторная планировка делает зонирование более логичным. Архитектура выполнена в стиле дома в классическом стиле. В качестве кровли использована битумная черепица — материал, проверенный временем.Характеристики
- Общая площадь: 200 м2
- Количество этажей: 1
- Стиль, разновидность: Дома в стиле Фахверк
- Форма: Прямоугольные дома
- Тип кровли: Дома с двускатной крышей
- Отделка: Без отделки
- Размер: 16x12
Отправьте свои контакты и мы расчитаем вам смету
Скорее всего вам подойдут следующие проекты домов:
Дом подходит для:
Дом подходит для:
Дом подходит для:












