Проект двухэтажного дома Современник
Площадь
212 м 2
Размер дома:
Этажей:
2
Спален:
3
Санузел:
0
Гараж:
Нет
Баня:
Нет
Терраса:
Нет
Панорамные окна:
Нет
Мастер-спальня:
Нет
О проекте
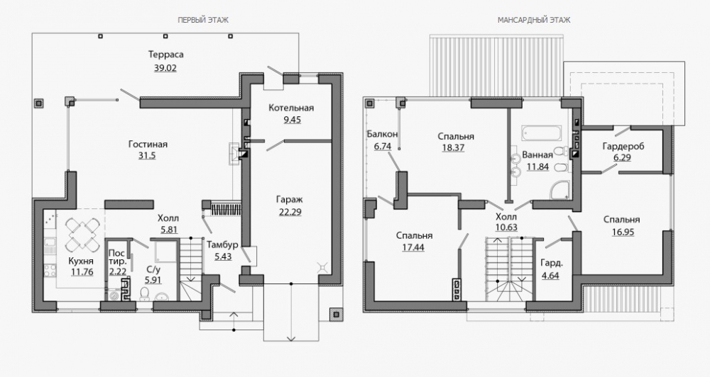
Его архитектура следует принципу простота — высшая степень sophistication. 212 м² — практичный подход к современной архитектуре. Конструкция из Каркас обеспечивает прочность и долговечность. Количество спален — 3, делая планировку гибкой. Двухэтажная эргономичная планировка организует пространство максимально эффективно.Характеристики
- Общая площадь: 212 м2
- Количество этажей: 2
- Стиль, разновидность: Дома в ином стиле
- Форма: Прямоугольные дома
- Тип кровли: Дома с мансардной крышей
- Отделка: Без отделки
Отправьте свои контакты и мы расчитаем вам смету
Скорее всего вам подойдут следующие проекты домов:
Дом подходит для:
Дом подходит для:
Дом подходит для:










