Проект двухэтажного дома Stefano
Дом подходит для:
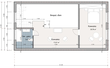
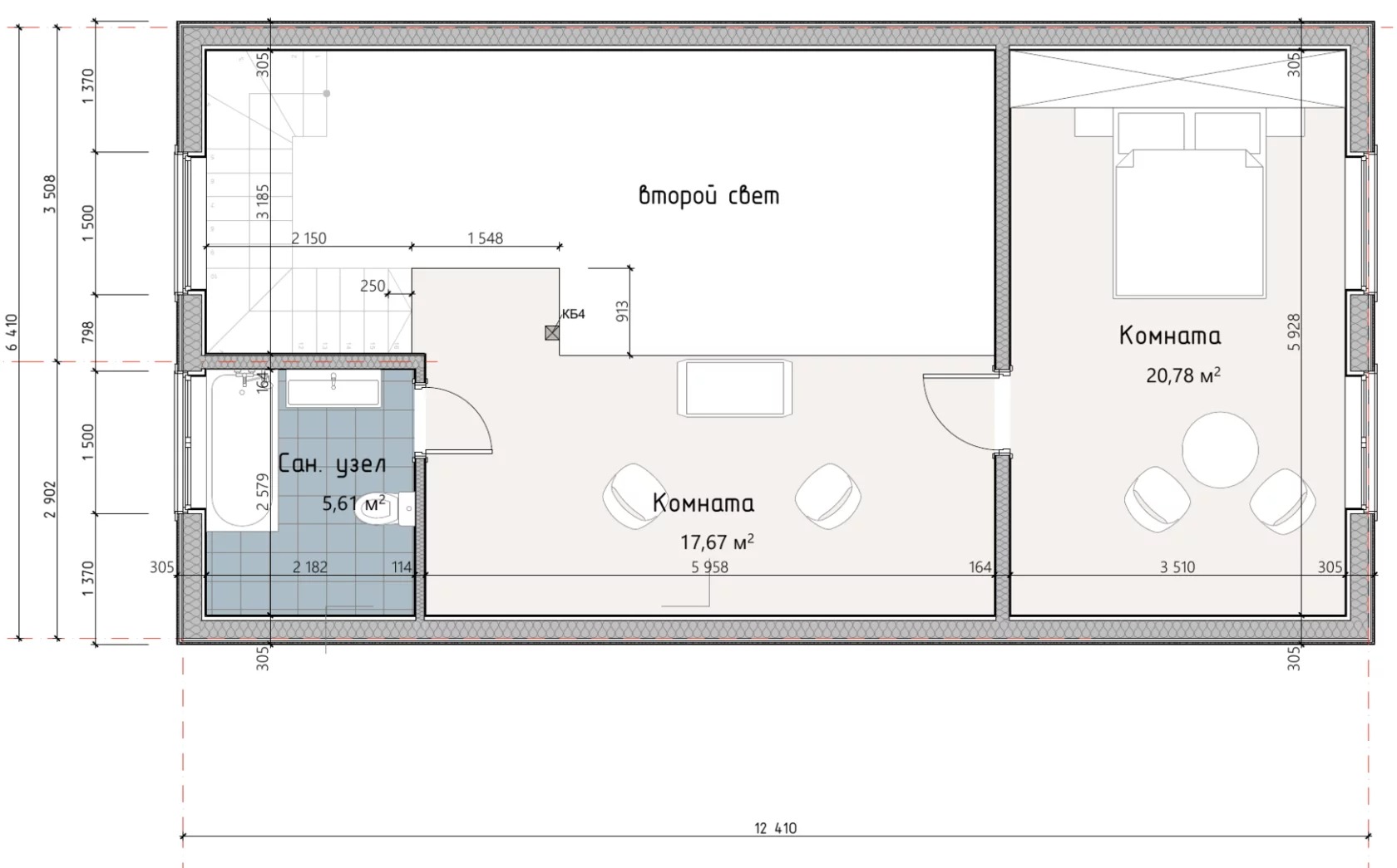
Площадь
120 м 2
Размер дома:
12.4[6.4
Этажей:
2
Спален:
3
Санузел:
2
Гараж:
Нет
Баня:
Нет
Терраса:
Да
Панорамные окна:
Нет
Мастер-спальня:
Нет
Планировка
Фасады
О проекте
Просторный дом площадью 120 м² с жилой площадью 103 м² идеален для семьи с двумя детьми. Каркасные стены обеспечивают тепло и энергоэффективность, а металлочерепица добавляет надежности. Интерьеры отличаются продуманной планировкой и уютной атмосферой. Это дом, где каждая деталь создана для комфортной жизни.Характеристики
- Общая площадь: 120 м2
- Жилая площадь: 103 м2
- Количество этажей: 2
- Гараж: нет
- Площадь кровли: 127 м2
- Стиль, разновидность: Дома в стиле Барнхаус
- Форма: Квадратные дома
- Тип кровли: Дома с двускатной крышей
- Пристрой: Дома с террасой
- Отделка: С черновой отделкой
- Отделка фасада: Дома с отделкой имитацией бруса
Материалы и перечень работ
- В стоимость не входит
- Сухая строганая калиброванная доска с противопожарной фаской, класс C24
- Внешние стены, лаги пола, стропила - 190x45, 140х45мм
- Перегородки - 90х45мм
- Лаги из сухой строганой доски 190х45мм
- Металлочерепица GRANDLINE Pro Matt 0,45 мм
- Водосточная система от AQUASYSTEM / GRANDLINE металл
- Снегозадержание GRANDLINE металл
- Окна и балконные двери - энергосберегающие REHAU DELIGHT 70, 5-ти камерный профиль, 2х камерный стеклопакет с мультифункциональным и i-стеклом 48мм
- В стоимость не входит
- Утепление внешних стен – 150мм PAROC + 30мм PIR панель (опция) + 25мм МДВП (опция)
- В стоимость не входит
- Сухая строганая калиброванная доска с противопожарной фаской, класс C24
- Внешние стены, лаги пола, стропила - 190x45, 140х45мм
- Перегородки - 90х45мм
- Лаги из сухой строганой доски 190х45мм
- Металлочерепица GRANDLINE Pro Matt 0,45 мм
- Водосточная система от AQUASYSTEM / GRANDLINE металл
- Снегозадержание GRANDLINE металл
- Окна и балконные двери - энергосберегающие REHAU DELIGHT 70, 5-ти камерный профиль, 2х камерный стеклопакет с мультифункциональным и i-стеклом 48мм
- В стоимость не входит
- Утепление внешних стен – 150мм PAROC + 30мм PIR панель (опция) + 25мм МДВП (опция)
Что еще входит в стоимость:
Отправьте свои контакты и мы расчитаем вам смету
Скорее всего вам подойдут следующие проекты домов:
Дом подходит для:
Дом подходит для:
Дом подходит для:














