Ваш город:

Проект двухэтажного дома Степаньковская слобода

Площадь: 160 м2
Размер: 8x9
Дом подходит для:
Для большой семьи
Этажей:
2
Стены:
Кровля:
Металлочерепица
Цена:
Оставить заявку
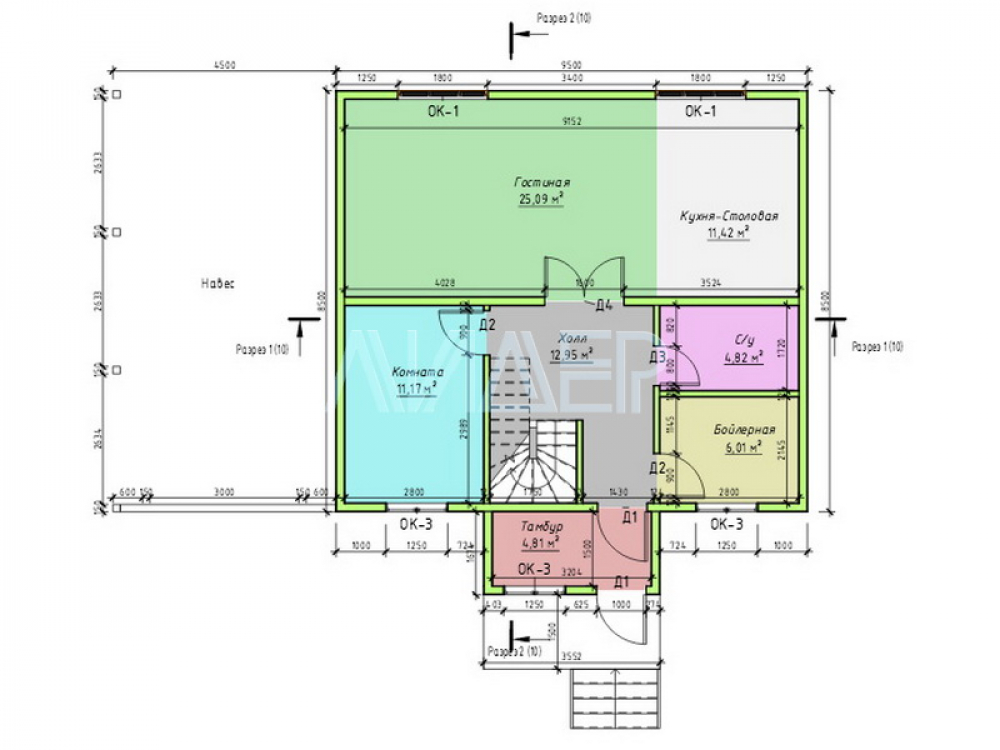
Площадь
160 м 2
Размер дома:
8x9
Этажей:
2
Спален:
4
Санузел:
0
Гараж:
Нет
Баня:
Нет
Терраса:
Нет
Панорамные окна:
Нет
Мастер-спальня:
Нет
О проекте
Дом, в котором хочется создавать традиции.Каждый метр из 160 м² задействован с умом. Стены из Каркас хорошо держат тепло и защищают от шума. Крыша из металлочерепица подчёркивает современный облик дома. Двухэтажная грамотная планировка делает зонирование более логичным.

Характеристики
  • Общая площадь: 160 м2
  • Количество этажей: 2
  • Стиль, разновидность: Дома в ином стиле
  • Форма: Прямоугольные дома
  • Тип кровли: Дома с двускатной крышей
  • Отделка: Без отделки
  • Размер: 8x9
Отправьте свои контакты и мы расчитаем вам смету
Прикрепить документ
Скорее всего вам подойдут следующие проекты домов:
Добавить к сравнению
Добавить в избранное
Изображение
Изображение
Изображение
Изображение
Изображение
Дом подходит для:
Семья с двумя детьми
Добавить к сравнению
Добавить в избранное
Изображение
Изображение
Изображение
Проект двухэтажного дома Конта
Площадь: 130 м2
Размер: 9x10
Дом подходит для:
Семья с двумя детьми
Дом подходит для:
Семья с двумя детьми
Добавить к сравнению
Добавить в избранное
Изображение
Изображение
Изображение
Изображение
Дом подходит для:
Для большой семьи