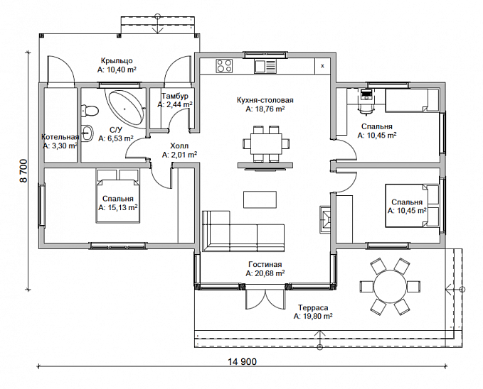
Проект одноэтажного дома Стрела
Площадь
108 м 2
Размер дома:
8x13
Этажей:
1
Спален:
3
Санузел:
0
Гараж:
Нет
Баня:
Нет
Терраса:
Нет
Панорамные окна:
Нет
Мастер-спальня:
Нет
О проекте
Проект, где каждый сантиметр продуман для вашего удобства.Эргономичное пространство на 108 м² радует глаз и душу. Стены из Каркас хорошо держат тепло и защищают от шума. Крыша из металлочерепица подчёркивает современный облик дома. В доме предусмотрено 3 спальни, что важно для комфорта.Характеристики
- Общая площадь: 108 м2
- Количество этажей: 1
- Стиль, разновидность: Финские дома
- Форма: Прямоугольные дома
- Тип кровли: Дома с двускатной крышей
- Отделка: Без отделки
- Размер: 8x13









