Проект двухэтажного дома Тихие Зори
Дом подходит для:
Площадь
235 м 2
Размер дома:
11x11
Этажей:
2
Спален:
4
Санузел:
2
Гараж:
Нет
Баня:
Нет
Терраса:
Нет
Панорамные окна:
Нет
Мастер-спальня:
Нет
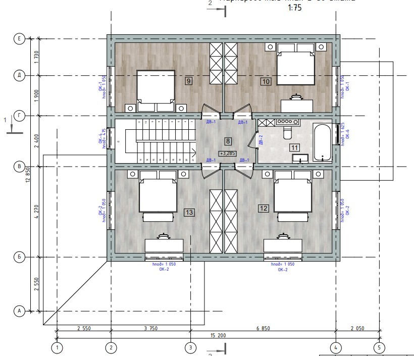
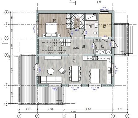
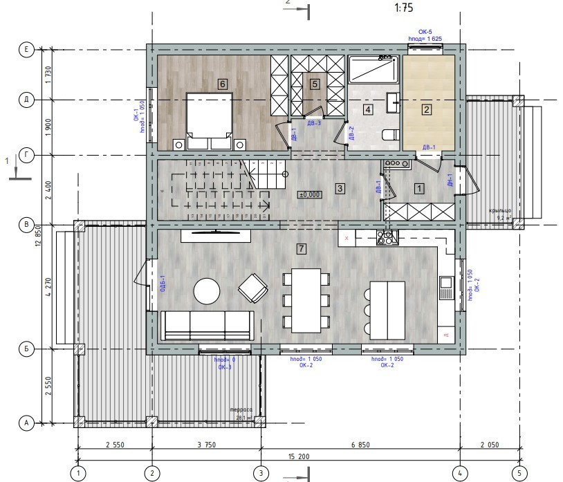
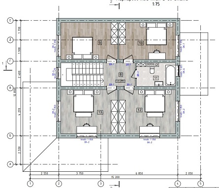
Планировка
Фасады
О проекте
Двухэтажный дом из газобетона площадью 235 м² — место, где царит гармония и простор. Жилая зона 182 м² продумана до мелочей, создавая ощущение уюта. Металлочерепица на крыше обеспечивает надежность, а четыре спальни делают пространство удобным. Здесь сочетаются традиции и современные технологии.Характеристики
- Общая площадь: 235 м2
- Жилая площадь: 182 м2
- Количество этажей: 2
- Гараж: нет
- Площадь кровли: 238 м2
- Размер: 11x11
Материалы и перечень работ
- Геологические изыскания - исследование проводится путем бурения 3-х скважин глубиной 8 метров с отбором грунта.
- Подготовка проекта
- Утепленная монолитная плита с усиленными ребрами жесткостями под несущие стены, теплоизоляция фундамента и грунта.
- Приемка инженером тех. надзора
- Подготовка проекта
- Изготовление ж/б армопояса
- Несущие стены толщиной от 300 мм
- Перекрытия из железобетонных плит заводского изготовления
- Сборка стенового комплекта
- Подготовка проекта КД кровли
- Покрытие кровли - металлочерепица Grandline с полимерным покрытием Satin
- Стропильная система из бруса
- Гидро-ветрозащитная мембрана
- Многослойная паронепроницаемая армированная плёнка из полиэтилена
- В железобетонной плите фундамента устраиваются закладные для ввода в дом коммуникаций: электричества, водоснабжения и канализации.
- Внешняя отделка: кирпичная кладка/утепленные панели под кирпич (на выбор клиента)
- Геологические изыскания - исследование проводится путем бурения 3-х скважин глубиной 8 метров с отбором грунта.
- Подготовка проекта
- Утепленная монолитная плита с усиленными ребрами жесткостями под несущие стены, теплоизоляция фундамента и грунта.
- Приемка инженером тех. надзора
- Подготовка проекта
- Изготовление ж/б армопояса
- Несущие стены толщиной от 300 мм
- Перекрытия из железобетонных плит заводского изготовления
- Сборка стенового комплекта
- Подготовка проекта КД кровли
- Покрытие кровли - металлочерепица Grandline с полимерным покрытием Satin
- Стропильная система из бруса
- Гидро-ветрозащитная мембрана
- Многослойная паронепроницаемая армированная плёнка из полиэтилена
- В железобетонной плите фундамента устраиваются закладные для ввода в дом коммуникаций: электричества, водоснабжения и канализации.
- Внешняя отделка: кирпичная кладка/утепленные панели под кирпич (на выбор клиента)
Что еще входит в стоимость:
Отправьте свои контакты и мы расчитаем вам смету
Скорее всего вам подойдут следующие проекты домов:
Проект двухэтажного дома Дом id-115526
Для большой семьи
Дом подходит для:
Дом подходит для:
Проект двухэтажного дома Дом id-111635
Семья с двумя детьми
Дом подходит для:
Дом подходит для:
Проект двухэтажного дома Дом id-112780
Для большой семьи
Дом подходит для:
Дом подходит для:






















