Проект одноэтажного дома Типовой дом 107
Дом подходит для:
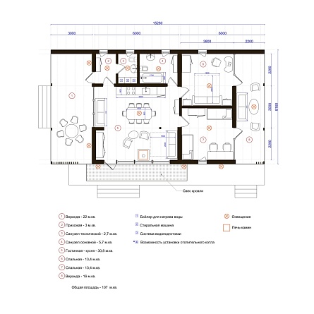
Площадь
107 м 2
Размер дома:
15,3х8,3
Этажей:
1
Спален:
2
Санузел:
2
Гараж:
Нет
Баня:
Нет
Терраса:
Да
Панорамные окна:
Нет
Мастер-спальня:
Нет
Планировка
Фасады
О проекте
Уютный дом площадью 107 м² с жилыми 88 м² создан для семьи с одним ребенком. Брусовые стены дарят тепло и натуральность, а профнастил обеспечивает надежность. Интерьеры наполнены светом и уютом, создавая атмосферу домашнего очага. Это идеальное решение для тех, кто ценит комфорт и стиль.Материалы и перечень работ
- В стоимость не входит
- Толщина утепления полов 200мм, утепление кровли 200мм с перекрёстной укладкой, утепление стен 150мм
- Каркас дома - деревянные брус камерной сушки
- Обработка огнебиозащитой NEOMID
- Внутрянная отделка - доска 190×20мм с отделкой на производстве маслом и краской TIKKURILA, пр-во Финляндия
- Укладка пола ( ламинат) по фанерному основанию
- Отделка кровли - профлист GRAND LINE
- Водосточная система и снегозадержание GRAND LINE
- Энергоэффективные окна и двери с фурнитурой ROTO, пр-ва Германия
- Двухкамерные стеклопакеты с энергосбрегающим стеклом
- Автоматика и выключатели LEGRAND, европейского пр-ва
- Электрический кабель ГОСТ ВВГ-НГ-LS
- Светильники внутри дома и уличное освещение
- Греющий кабель на ввод водоснабжения
- Электрический тёплый пол ELECTROLUX с автоматикой в санузле и в прихожей
- Утеплитель KNAUF INSULATION PROF TS-037
- В стоимость не входит
- Толщина утепления полов 200мм, утепление кровли 200мм с перекрёстной укладкой, утепление стен 150мм
- Каркас дома - деревянные брус камерной сушки
- Обработка огнебиозащитой NEOMID
- Внутрянная отделка - доска 190×20мм с отделкой на производстве маслом и краской TIKKURILA, пр-во Финляндия
- Укладка пола ( ламинат) по фанерному основанию
- Отделка кровли - профлист GRAND LINE
- Водосточная система и снегозадержание GRAND LINE
- Энергоэффективные окна и двери с фурнитурой ROTO, пр-ва Германия
- Двухкамерные стеклопакеты с энергосбрегающим стеклом
- Автоматика и выключатели LEGRAND, европейского пр-ва
- Электрический кабель ГОСТ ВВГ-НГ-LS
- Светильники внутри дома и уличное освещение
- Греющий кабель на ввод водоснабжения
- Электрический тёплый пол ELECTROLUX с автоматикой в санузле и в прихожей
- Утеплитель KNAUF INSULATION PROF TS-037
Что еще входит в стоимость:
Отправьте свои контакты и мы расчитаем вам смету
Скорее всего вам подойдут следующие проекты домов:
Дом подходит для:
Дом подходит для:
Дом подходит для:













