Проект двухэтажного дома U-093-1K
Дом подходит для:
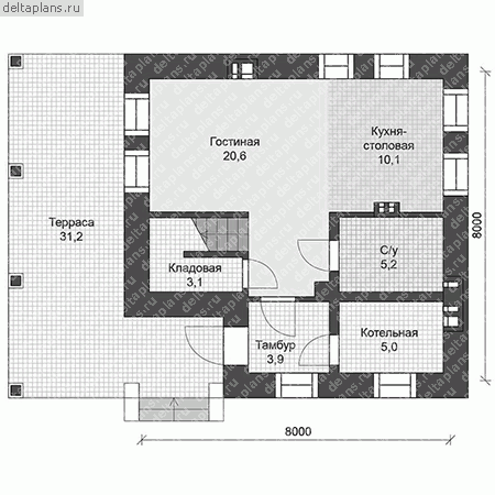
Площадь
93 м 2
Размер дома:
8x8
Этажей:
2
Спален:
3
Санузел:
2
Гараж:
Нет
Баня:
Нет
Терраса:
Нет
Панорамные окна:
Нет
Мастер-спальня:
Нет
Планировка
Фасады
О проекте
Этот дом площадью 93 м² с жилыми 53 м² — воплощение элегантности и функциональности. Керамические блоки дарят тепло и натуральность, создавая уютное пространство. Просторные комнаты наполнены светом, а рациональная планировка делает жизнь комфортной. Здесь каждый метр продуман для гармоничной жизни.Характеристики
- Общая площадь: 93.2 м2
- Жилая площадь: 53.17 м2
- Количество этажей: 2
- Гараж: нет
- Площадь кровли: 96 м2
- Отделка: Без отделки
- Размер: 8x8
- Фундамент: Дома с плитным фундаментом
Материалы и перечень работ
- Фундамент: монолитная плита толщиной 300 мм
- Песчаная подушка 200мм.
- Щебеночная подушка 100мм
- Утепление пеноплексом 50мм
- Гидроизоляция из армированного полиэтилена
- Несущие стены из керамических кирпичных блоков, толщиной 380мм. Производитель (завод): Poroterm, Рябовский КЗ.
- Внутренние несущие стены из двойного щелевого кирпича толщиной 380мм
- Армирование кладки через каждые три ряда.
- Кладка производится на "теплый" раствор
- Устройство армопоясов
- Кровля — металло-черепица
- Усиленная стропильная система из доски 150*50 мм, 1 сорта, с шагом 580 мм.
- Внешняя сторона четырехслойная диффузионная мембрана Ютавек 115.
- Все деревянные конструкции антисептируются в два слоя, специальным огне-био защитным составом Neomid 430ECO.
- Толщина стали: 0,5 мм.
- В стоимость не входят
- Ввод закладных утепленных труб D110мм. на глубину промерзания для подключения к септику (ЦК) и скважине/колодцу (ЦВ).
- Оформленные оконные и дверные проемы
- Фундамент: монолитная плита толщиной 300 мм
- Песчаная подушка 200мм.
- Щебеночная подушка 100мм
- Утепление пеноплексом 50мм
- Гидроизоляция из армированного полиэтилена
- Несущие стены из керамических кирпичных блоков, толщиной 380мм. Производитель (завод): Poroterm, Рябовский КЗ.
- Внутренние несущие стены из двойного щелевого кирпича толщиной 380мм
- Армирование кладки через каждые три ряда.
- Кладка производится на "теплый" раствор
- Устройство армопоясов
- Кровля — металло-черепица
- Усиленная стропильная система из доски 150*50 мм, 1 сорта, с шагом 580 мм.
- Внешняя сторона четырехслойная диффузионная мембрана Ютавек 115.
- Все деревянные конструкции антисептируются в два слоя, специальным огне-био защитным составом Neomid 430ECO.
- Толщина стали: 0,5 мм.
- В стоимость не входят
- Ввод закладных утепленных труб D110мм. на глубину промерзания для подключения к септику (ЦК) и скважине/колодцу (ЦВ).
- Оформленные оконные и дверные проемы
Что еще входит в стоимость:
Отправьте свои контакты и мы расчитаем вам смету
Скорее всего вам подойдут следующие проекты домов:
Дом подходит для:




