Проект одноэтажного дома Умилица
Дом подходит для:
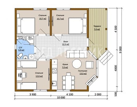
Площадь
90 м 2
Размер дома:
10х9
Этажей:
1
Спален:
3
Санузел:
1
Гараж:
Нет
Баня:
Нет
Терраса:
Да
Панорамные окна:
Нет
Мастер-спальня:
Нет
Планировка
Фасады
О проекте
Уютный дом из бруса площадью 90 м² с жилыми 76 м² идеален для семьи с двумя детьми, предлагая комфорт и практичность. Металлочерепичная кровля подчеркивает его надежность, а три спальни обеспечивают удобство. Свайный фундамент придает устойчивость, а лаконичный дизайн создает атмосферу спокойствия. Здесь царит гармония простоты и семейного уюта.Характеристики
- Общая площадь: 90 м2
- Жилая площадь: 76 м2
- Количество этажей: 1
- Гараж: нет
- Площадь кровли: 98 м2
- Форма: Квадратные дома
- Тип кровли: Дома с двускатной крышей
- Пристрой: Дома с террасой
- Отделка: Без отделки
- Фундамент: Дома со свайным фундаментом
Материалы и перечень работ
- Мы используем железобетонные сваи сечением 150х150 мм. и длиной - 3 м. (если иное не требуется).
- Сваи забиваются на площадке специальной техникой - миникопром.
- Наружные стены сруба и несущая стена - брус 140х140 мм. камерной сушки.
- Брус укладывается на межвенцовый утеплитель «Политерм», толщина: 15 мм.
- Горизонтальная гидроизоляция на фундамент (рубероид).
- Подкладочная антисептированая доска толщиной – 50 мм.
- Балки пола - брус 100х200 мм. с шагом 58,5 см.
- Металлочерепица Grand Line
- Коньки полукруглые с уплотнителями
- Контробрешетка
- Мембрана Faracs MAXX, 3-х слойная супердиффузионная
- Капельники (планка карнизная)
- В стоимость не входит
- В стоимость не входит
- В стоимость не входит
- Мы используем железобетонные сваи сечением 150х150 мм. и длиной - 3 м. (если иное не требуется).
- Сваи забиваются на площадке специальной техникой - миникопром.
- Наружные стены сруба и несущая стена - брус 140х140 мм. камерной сушки.
- Брус укладывается на межвенцовый утеплитель «Политерм», толщина: 15 мм.
- Горизонтальная гидроизоляция на фундамент (рубероид).
- Подкладочная антисептированая доска толщиной – 50 мм.
- Балки пола - брус 100х200 мм. с шагом 58,5 см.
- Металлочерепица Grand Line
- Коньки полукруглые с уплотнителями
- Контробрешетка
- Мембрана Faracs MAXX, 3-х слойная супердиффузионная
- Капельники (планка карнизная)
- В стоимость не входит
- В стоимость не входит
- В стоимость не входит
Что еще входит в стоимость:
Отправьте свои контакты и мы расчитаем вам смету
Скорее всего вам подойдут следующие проекты домов:
Дом подходит для:
Дом подходит для:
Дом подходит для:











