Проект одноэтажного дома Усадьба Динская Краснодар
Дом подходит для:
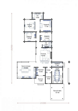
Площадь
329 м 2
Размер дома:
26,9 х 24,3
Этажей:
1
Спален:
2
Санузел:
2
Гараж:
Да
Баня:
Нет
Терраса:
Нет
Панорамные окна:
Нет
Мастер-спальня:
Нет
Планировка
Характеристики
- Общая площадь: 329 м2
- Жилая площадь: 261 м2
- Количество этажей: 1
- Гараж: 22,9
- Площадь кровли: 333 м2
- Отделка: Без отделки
Материалы и перечень работ
- По согласованию
- По согласованию
- По согласованию
- По согласованию
- По согласованию
- По согласованию
- По согласованию
- По согласованию
- По согласованию
- По согласованию
- По согласованию
- По согласованию
Что еще входит в стоимость:
Отправьте свои контакты и мы расчитаем вам смету
Скорее всего вам подойдут следующие проекты домов:
Дом подходит для:




