Проект одноэтажного дома Валдай
Дом подходит для:
Площадь
112 м 2
Размер дома:
10,5х13
Этажей:
1
Спален:
3
Санузел:
2
Гараж:
Нет
Баня:
Нет
Терраса:
Нет
Панорамные окна:
Нет
Мастер-спальня:
Нет
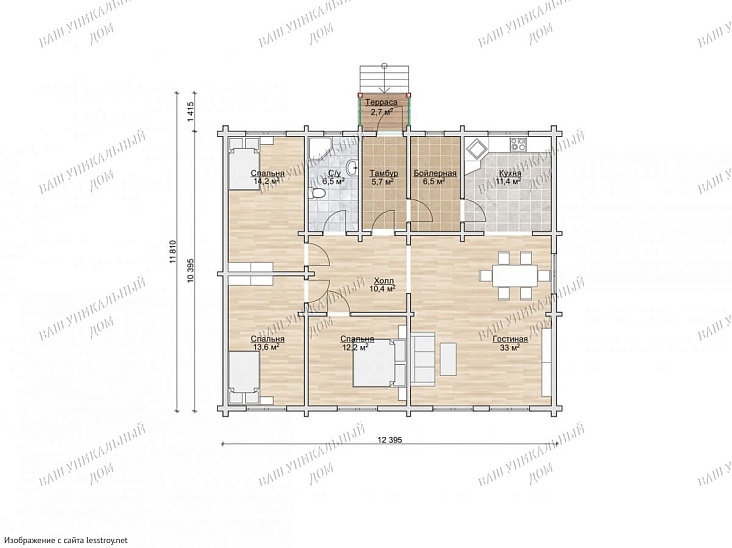
Планировка
Фасады
О проекте
Уютный дом Валдай площадью 112 м² с жилыми 61 м² создан для комфортного проживания. Каркасные стены обеспечивают легкость, а профнастил на крыше добавляет практичности. Три спальни и два санузла делают его удобным для семьи. Вариативный фундамент завершает образ этого добротного жилья.Характеристики
- Общая площадь: 112 м2
- Жилая площадь: 61 м2
- Количество этажей: 1
- Гараж: нет
- Площадь кровли: 123 м2
- Отделка: С инженерными коммуникациями
Материалы и перечень работ
- Тип фундамента зависит от выбранной комплектации.
- Теплый дом - монолитный ленточный
- Теплый дом + - свайный винтовой ниже глубины промерзания
- Аляска - свайный забивной железобетонный ниже глубины промерзания
- В комплектации Теплый дом: Стены из клееного бруса, утепление стены 1-го и 2-го этажей 150 мм; Пол 1-го этажа150 мм; Перекрытие 1-го этажа 100 мм; Перекрытие 2-го этажа 150 мм
- В комплектации Теплый дом+: Стены из клееного бруса, утепление стены 1-го и 2-го этажей 150 мм; Пол 1-го этажа 150 мм; Перекрытие 1-го этажа 100 мм; Перекрытие 2-го этажа 150 мм.
- В комплектации Аляска: Стены из клееного бруса, утепление Стены 1-го и 2-го этажей 200 мм; Пол 1-го этажа 200 мм; Перекрытие 1-го этажа 100 мм; Перекрытие 2-го этажа 200 мм; Перегородки 1-го и 2-го этажей 100 мм
- В комплектации Теплый дом: профлист оцинкованный
- В комплектации Теплый дом+: металлическая
- В комплектации Аляска: металлическая
- В комплектации Теплый дом: окна пластиковые однокамерные, дверь не включена в стоимость, лестница монтажная.
- В комплектации Теплый дом+: окна пластиковые однокамерные, дверь металлическая, лестница деревянная.
- В комплектации Аляска: окна пластиковые двухкамерные, входная дверь металлическая, лестница деревянная.
- Пакет инженерных услуг поможет обеспечить городской уровень комфорта в вашем доме.
- Устройство однофазной проводки мощностью 3-8 кВт.
- Конвекторное отопление Ballu (до -15С).
- Разводка труб горячей и холодной воды, прокладка канализационных труб, водонагреватель, накопительный бак, фильтр грубой очистки.
- Комплектация Теплый дом предполагает на выходе теплый контур под отделку.
- Комплектация Теплый дом+: отделка вагонкой стен, потолка и дома снаружи, обработка конструкции пола огнебиозащитой, гидроизоляция санузлов, подготовка поверхности для укладки плитки.
- Комплектация Аляска: отделка вагонкой стен и потолка, отделка сайдингом дома снаружи, обработка конструкции пола огнебиозащитой, гидроизоляция санузлов, подготовка поверхности для укладки плитки, устройство системы вентиляции кухни и санузлов.
- Тип фундамента зависит от выбранной комплектации.
- Теплый дом - монолитный ленточный
- Теплый дом + - свайный винтовой ниже глубины промерзания
- Аляска - свайный забивной железобетонный ниже глубины промерзания
- В комплектации Теплый дом: Стены из клееного бруса, утепление стены 1-го и 2-го этажей 150 мм; Пол 1-го этажа150 мм; Перекрытие 1-го этажа 100 мм; Перекрытие 2-го этажа 150 мм
- В комплектации Теплый дом+: Стены из клееного бруса, утепление стены 1-го и 2-го этажей 150 мм; Пол 1-го этажа 150 мм; Перекрытие 1-го этажа 100 мм; Перекрытие 2-го этажа 150 мм.
- В комплектации Аляска: Стены из клееного бруса, утепление Стены 1-го и 2-го этажей 200 мм; Пол 1-го этажа 200 мм; Перекрытие 1-го этажа 100 мм; Перекрытие 2-го этажа 200 мм; Перегородки 1-го и 2-го этажей 100 мм
- В комплектации Теплый дом: профлист оцинкованный
- В комплектации Теплый дом+: металлическая
- В комплектации Аляска: металлическая
- В комплектации Теплый дом: окна пластиковые однокамерные, дверь не включена в стоимость, лестница монтажная.
- В комплектации Теплый дом+: окна пластиковые однокамерные, дверь металлическая, лестница деревянная.
- В комплектации Аляска: окна пластиковые двухкамерные, входная дверь металлическая, лестница деревянная.
- Пакет инженерных услуг поможет обеспечить городской уровень комфорта в вашем доме.
- Устройство однофазной проводки мощностью 3-8 кВт.
- Конвекторное отопление Ballu (до -15С).
- Разводка труб горячей и холодной воды, прокладка канализационных труб, водонагреватель, накопительный бак, фильтр грубой очистки.
- Комплектация Теплый дом предполагает на выходе теплый контур под отделку.
- Комплектация Теплый дом+: отделка вагонкой стен, потолка и дома снаружи, обработка конструкции пола огнебиозащитой, гидроизоляция санузлов, подготовка поверхности для укладки плитки.
- Комплектация Аляска: отделка вагонкой стен и потолка, отделка сайдингом дома снаружи, обработка конструкции пола огнебиозащитой, гидроизоляция санузлов, подготовка поверхности для укладки плитки, устройство системы вентиляции кухни и санузлов.
Что еще входит в стоимость:
Отправьте свои контакты и мы расчитаем вам смету
Скорее всего вам подойдут следующие проекты домов:
Дом подходит для:
Дом подходит для:
Дом подходит для:










