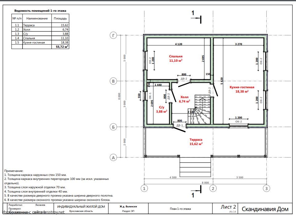
Проект двухэтажного дома Валенсия
Площадь
80 м 2
Размер дома:
6x8
Этажей:
2
Спален:
3
Санузел:
0
Гараж:
Нет
Баня:
Нет
Терраса:
Нет
Панорамные окна:
Нет
Мастер-спальня:
Нет
О проекте
Уютный и атмосферный, этот каркасный дом (80 м²) в финском стиле — воплощение северного комфорта. Три спальни, два этажа и металлочерепица создают тёплую и гостеприимную атмосферу.Характеристики
- Общая площадь: 80 м2
- Количество этажей: 2
- Стиль, разновидность: Финские дома
- Форма: Прямоугольные дома
- Тип кровли: Дома с мансардной крышей
- Отделка: Без отделки
- Размер: 6x8
Отправьте свои контакты и мы расчитаем вам смету
Скорее всего вам подойдут следующие проекты домов:
Проект двухэтажной бани Лада 2
Семья с одним ребенком
Баня подходит для:
Баня подходит для:
Дом подходит для:
Дом подходит для:








